Wohnhaus
ID:
114459827816
/
Datum:
20.04.2011
Datenbestand: Bauforschung
Datenbestand: Bauforschung
Objektdaten
| Straße: | Kanzleigasse |
| Hausnummer: | 8 |
| Postleitzahl: | 78050 |
| Stadt-Teilort: | Villingen |
|
|
|
| Regierungsbezirk: | Freiburg |
| Kreis: | Schwarzwald-Baar-Kreis (Landkreis) |
| Wohnplatzschlüssel: | 8326074020 |
| Flurstücknummer: | keine |
| Historischer Straßenname: | keiner |
| Historische Gebäudenummer: | keine |
| Lage des Wohnplatzes: |
|
Kartenansicht (OpenStreetMaps)
Durch Ihre Cookie-Auswahl haben Sie die Kartenansicht deaktiviert, die eigentlich hier angezeigt werden würde. Wenn Sie die Kartenansicht nutzen möchten, passen Sie bitte Ihre Cookie-Einstellungen unter Impressum & Datenschutzerklärung an.
Wohnhaus, Bickenstraße 5 (78050 Villingen)
Wohn- und Geschäftshaus, Brunnenstraße 7 (78050 Villingen)
Wohnhaus, Brunnenstraße 34 (78050 Villingen)
Wohnhaus, Färberstraße 54 (78050 Villingen)
Wohnhaus, Gerberstraße 78 (78050 Villingen)
Wohnhaus, Gerberstraße 55 (78050 Villingen)
Wohnhäuser, Gerberstraße 56-60 (78050 Villingen)
Wohnhaus, Gerberstraße 56 (78050 Villingen)
Wohnhaus, Gerberstraße 57 (78050 Villingen)
Wohnhaus, Gerberstraße 58 (78050 Villingen)
Wohnhaus, Gerberstraße 60 (78050 Villingen)
Wohnhaus, Gerberstraße 68 (78050 Villingen)
Wohnhaus, Gerberstraße 76 (78050 Villingen)
Wohnhaus, Hans-Kraut-Gasse 3 (78050 Villingen)
Rabenscheuer, Kanzleigasse 2 (78050 Villingen)
Ehem. Hofanlage; Wohn- und Geschäftshaus, Obere Straße 4 (78050 Villingen)
Rietgasse 5 (78050 Villingen, Rietgasse 5)
Waisenhaus, Rietstraße 39 (78050 Villingen, Rietstraße 39)
Wohn- und Lagerhaus, Rosengasse 22 (78050 Villingen)
Wohnhaus, Zinsergasse 14 (78050 Villingen)
Wohn- und Geschäftshaus, Brunnenstraße 7 (78050 Villingen)
Wohnhaus, Brunnenstraße 34 (78050 Villingen)
Wohnhaus, Färberstraße 54 (78050 Villingen)
Wohnhaus, Gerberstraße 78 (78050 Villingen)
Wohnhaus, Gerberstraße 55 (78050 Villingen)
Wohnhäuser, Gerberstraße 56-60 (78050 Villingen)
Wohnhaus, Gerberstraße 56 (78050 Villingen)
Wohnhaus, Gerberstraße 57 (78050 Villingen)
Wohnhaus, Gerberstraße 58 (78050 Villingen)
Wohnhaus, Gerberstraße 60 (78050 Villingen)
Wohnhaus, Gerberstraße 68 (78050 Villingen)
Wohnhaus, Gerberstraße 76 (78050 Villingen)
Wohnhaus, Hans-Kraut-Gasse 3 (78050 Villingen)
Rabenscheuer, Kanzleigasse 2 (78050 Villingen)
Ehem. Hofanlage; Wohn- und Geschäftshaus, Obere Straße 4 (78050 Villingen)
Rietgasse 5 (78050 Villingen, Rietgasse 5)
Waisenhaus, Rietstraße 39 (78050 Villingen, Rietstraße 39)
Wohn- und Lagerhaus, Rosengasse 22 (78050 Villingen)
Wohnhaus, Zinsergasse 14 (78050 Villingen)
Bauphasen
Kurzbeschreibung der Bau-/Objektgeschichte bzw. Baugestaltungs- und Restaurierungsphasen:
Dachwerk aus dem 14. Jh. (d).
1. Bauphase:
(1313 - 1315)
(1313 - 1315)
Erstes Ergebnis der dendrochronologischen Analyse im Dachwerk (d) [Tannen- und Fichtenhölzer].
Betroffene Gebäudeteile:
keine
Konstruktionsdetail:
- Dachgerüst Grundsystem
- Sparrendach, q. geb., mit einheitlicher Gebindeaufreihung
2. Bauphase:
(1504)
(1504)
Zweites Ergebnis der dendrochronologischen Analyse im Dachwerk (d) [Fichtenhölzer].
Betroffene Gebäudeteile:
keine
Zugeordnete Dokumentationen
- Dendrochronologische Untersuchung
Beschreibung
Umgebung, Lage:
in Zentrumsnähe
Lagedetail:
- Siedlung
- Stadt
Bauwerkstyp:
- Wohnbauten
- Wohnhaus
Baukörper/Objektform (Kurzbeschreibung):
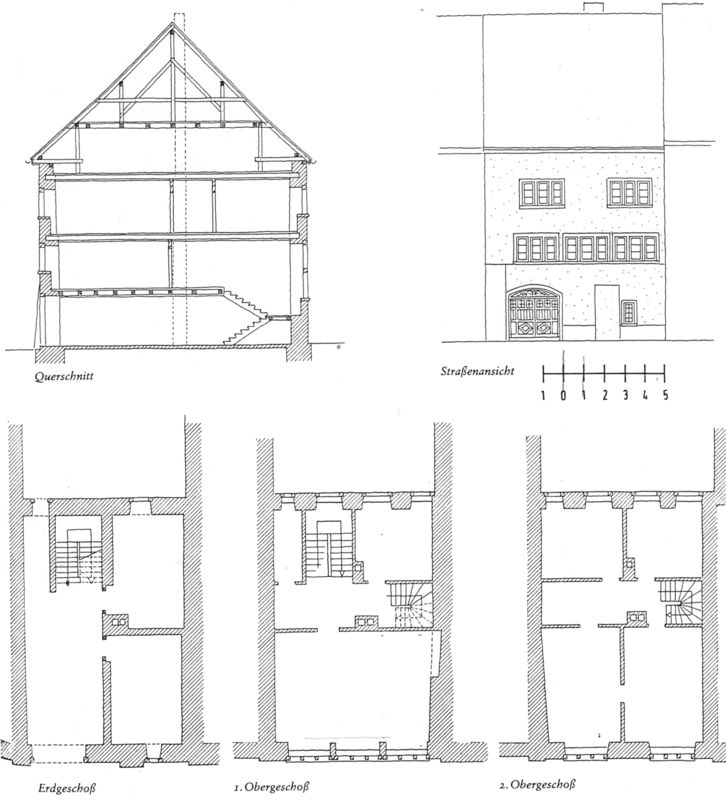
Traufständiger, dreigeschossiger Massivbau
Innerer Aufbau/Grundriss/
Zonierung:
Zonierung:
keine Angaben
Vorgefundener Zustand (z.B. Schäden, Vorzustand):
keine Angaben
Bestand/Ausstattung:
keine Angaben
Konstruktionen
Konstruktionsdetail:
- Dachform
- Satteldach
Konstruktion/Material:
keine Angaben

