Hinterhaus
Datenbestand: Bauforschung
Objektdaten
| Straße: | Semmelsgasse |
| Hausnummer: | 9 |
| Postleitzahl: | 69117 |
| Stadt-Teilort: | Heidelberg |
|
|
|
| Regierungsbezirk: | Karlsruhe |
| Kreis: | Heidelberg (Stadtkreis) |
| Wohnplatzschlüssel: | 8221000002 |
| Flurstücknummer: | keine |
| Historischer Straßenname: | keiner |
| Historische Gebäudenummer: | keine |
| Lage des Wohnplatzes: |
|
Kartenansicht (OpenStreetMaps)
Schloss Heidelberg (Sachgesamtheit) (69117 Heidelberg)
Wohn- und Geschäftshaus (69117 Heidelberg-Altstadt, Dreikönigstraße 20)
ehem. Hotel, heute Verwaltungsgebäude (69117 Heidelberg-Altstadt, Friedrich-Ebert-Anlage 22)
Hexenturm (69117 Heidelberg-Altstadt, Grabengasse 3-5)
Wohnhaus, Große Mantelgasse 21 (69117 Heidelberg-Altstadt)
Palais Neukirch (69117 Heidelberg-Altstadt, Hauptstraße 120)
ehem. Oberrheinische Bank, Bank- und Wohnhaus, Hauptstraße 126 (69117 Heidelberg-Altstadt)
Café Scheu, Wohn- und Geschäftshaus, Hauptstraße 137 (69117 Heidelberg-Altstadt)
Gasthaus „Zum Sepp’l“ (69117 Heidelberg-Altstadt, Hauptstraße 213)
Wohn- und Geschäftshaus (69117 Heidelberg-Altstadt, Hauptstraße 86)
Wohn- und Geschäftshaus (69117 Heidelberg-Altstadt, Ingrimstraße 34)
Wohnhaus, Kanzleigasse 4 (69117 Heidelberg-Altstadt)
Wohn- und Geschäftshaus (69117 Heidelberg-Altstadt, Kleine Mantelgasse 7)
ehemaliges Verbindungshaus, Studentenwohnheim (69115 Heidelberg, Haspelgasse 10)
Wohn- und Geschäftshaus, Hauptstraße 131 (69117 Heidelberg)
Europahaus IV (69117 Heidelberg, Kleine Mantelgasse 24)
Wohn- und Geschäftshaus (69117 Heidelberg, Mittelbadgasse 14)
Friedrichsbau (Heidelberg, Schloss)
Ottheinrichsbau (69117 Heidelberg, Schlosshof 1)
Bauphasen
1762 (a) findet sich der erste Besitzernachweis für dieses Grundstück. Um diese Zeit wurde das betreffende Lagerbuch allerdings erst neu angelegt. Eine frühere archivalische Quelle lässt sich nicht finden, die EG-Balkendecke wurde für das Hinterhaus um 1710-15(d) datiert.
1769(d) wurde das Gebäude vermutlich saniert bzw. gesichert. In diesem Zuge könnte auch die nicht besonders sorgfältig ausgeführte Aufmauerung der Südwand erfolgt sein.
Archivalisch ist die Aufstockung des Hinterhauses ins Jahr 1815(a) belegt. Es wurden drei Geschosse als Fachwerkkonstruktion aufgestockt. Mit der Beendigung der Stallnutzung dürfte das Versetzten des nördlichen Türpfostens um ca. 30-40cm einhergehen, da für Zugpferde der Durchgang unpraktisch verengt würde.
(1710 - 1715)
- Ländl./ landwirtschaftl. Bauten/ städtische Nebengeb.
- Wohnstallhaus
- Steinbau Mauerwerk
- Werkstein
(1769)
(1815)
- Holzgerüstbau
- Unterbaugerüst
Zugeordnete Dokumentationen
- Bauhistorische Kurzuntersuchung mit Schwerpunkt EG-Stallungen
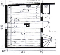
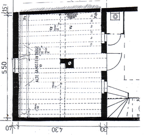
Beschreibung
- Siedlung
- Stadt
- Ländl./ landwirtschaftl. Bauten/ städtische Nebengeb.
- Wohnstallhaus
Zonierung:
Konstruktionen
- Mischbau
- Obergeschoss(e) aus Holz
- Holzgerüstbau
- Unterbaugerüst
- Steinbau Mauerwerk
- Werkstein
- Dachform
- Pultdach


