Wohnhaus
Datenbestand: Bauforschung
Objektdaten
| Straße: | Olgastraße |
| Hausnummer: | 3 |
| Postleitzahl: | 73614 |
| Stadt-Teilort: | Schorndorf |
|
|
|
| Regierungsbezirk: | Stuttgart |
| Kreis: | Rems-Murr-Kreis (Landkreis) |
| Wohnplatzschlüssel: | 8119067010 |
| Flurstücknummer: | keine |
| Historischer Straßenname: | keiner |
| Historische Gebäudenummer: | keine |
| Lage des Wohnplatzes: |
|
Kartenansicht (OpenStreetMaps)
Wohnhaus, Konstanzer-Hof-Gasse 14 (73614 Schondorf)
Wohnhaus, Höllgasse 26 (73614 Schorndorf)
Keller (73614 Schorndorf, Johann-Philipp-Palm-Straße 27)
Wohn- und Geschäftshaus (73614 Schorndorf, Johann-Philipp-Palmstraße 33)
Ev. Stadtkirche, Chordach (73614 Schorndorf, Kirchplatz 10)
Wohnhaus, Marktplatz 18 (73614 Schorndorf)
Palmsche Apotheke (73614 Schorndorf, Marktplatz 2)
Cafe Weiler (heute Backwelt Mack) (73614 Schorndorf, Marktplatz 4)
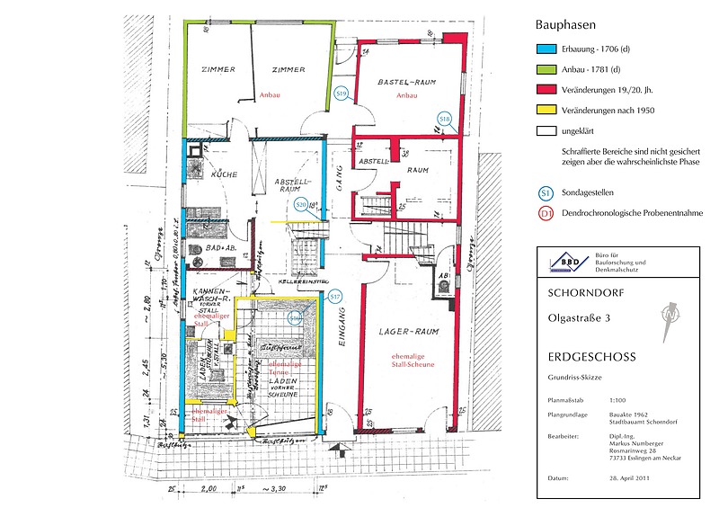
Bauphasen
Das Wohn- und Geschäftshaus Olgastraße 3 in Schorndorf wurde im Jahr 1706 möglicherweise über einem älteren Gewölbekeller einer Vorgängerbebauung neu errichtet. Im Jahr 1781 wurde schließlich der südöstliche Anbau errichtet.
Wie das Feuerversicherungskataster und die Datierung der Holzprobe 5 (1877) nahelegen, erfolgten bereits im späten 19. Jahrhundert diverse bauliche Veränderungen am Gebäude. So wurde der ursprüngliche Ökonomieteil, der im Erdgeschoss die westliche Haushälfte einnahm (siehe Primärkatasterplan von 1832; Abb. 1), wohl im späten 19. oder frühen 20. Jahrhundert umgebaut und substanziell in großen Bereichen erneuert.
Weitere bauliche Eingriffe erfolgten im 20. Jahrhundert und hier speziell durch den Ladeneinbau im Erdgeschoss in der 2. Hälfte des 20. Jahrhunderts. 2017 wurde der Abbruch des Gebäudes vollzogen.
Durch den freien Architekten Wolf-Ulrich Siebert wurde bereits eine kurze Dokumentation des Gebäudes erstellt, welche auch eine Auswertung der Feuerversicherungskataster beinhaltet.
(1706)
- Erdgeschoss
- Obergeschoss(e)
- Dachgeschoss(e)
- Untergeschoss(e)
- Siedlung
- Stadt
(1781)
Die Bauhölzer des südöstlich am Gebäude befindlichen Anbaus konnten dendrochronologisch auf Sommer 1781 datiert werden.
Somit kann davon ausgegangen werden, dass dieser bereits auf dem Primärkatasterplan von 1832 (Abb. 1) verzeichnete Anbau im Jahr 1781 errichtet wurde.
- Anbau
- Siedlung
- Stadt
(1859)
- Erdgeschoss
- Obergeschoss(e)
- Dachgeschoss(e)
- Untergeschoss(e)
- Siedlung
- Stadt
(1889)
- Anbau
- Siedlung
- Stadt
(1889)
Gebäude 1889 neu erbaut.
- Erdgeschoss
- Siedlung
- Stadt
- Ländl./ landwirtschaftl. Bauten/ städtische Nebengeb.
- Lagergebäude
(1905)
- Erdgeschoss
- Obergeschoss(e)
- Dachgeschoss(e)
- Untergeschoss(e)
- Anbau
- Siedlung
- Stadt
(1907)
Ein freistehendes 3stöckiges Wohngebäude mit eingebauter Scheuer von gemischter Bauart unter Giebeldach mit Dachplatten und Falzziegel bedeckt.
Im EG: 1 Tenne, 1 gedeckter Brunnen, 1 Küche, 1 Stallung, 1 Gang, 1 Abtritt, Kellerzugang, Treppe
Im 1. Stock: 2 heizb., 4 unheizb. Zimmer, 1 gew. Kammer, 3 Küchen, 2 Öfen, 2 Abtritt
Im Dach: 6 gew. Kammern
ferner auf der Südseite angebaut eine 1stöckige Holzremise auf Freipfosten unter Dach mit Brettern bedeckt und auf der Südseite ohne eigene Wand angebaut ein 1stöckiger Wohnungsanbau von gemischter Bauart unter Giebeldach mit Dachplatten bedeckt.
- Erdgeschoss
- Obergeschoss(e)
- Dachgeschoss(e)
- Untergeschoss(e)
- Anbau
(2017)
Besitzer:in
(1859)
(1880)
- Weingärtner
(1890)
- Kübler
(1894)
- Weingärtner
Zugeordnete Dokumentationen
- Bauhistorische Kurzuntersuchung
Beschreibung
Ortsrand der Vorstadt.
- Siedlung
- Stadt
- Wohnbauten
- Wohn- und Geschäftshaus
errichtet wurde. Bemerkenswert ist das recht hohe Erdgeschoss, welches ursprünglich eine Stall- und Scheunennutzung aufnahm und heute teilweise durch ein Zwischengeschoss unterteilt wird.
Nach oben schließt das Gebäude mit zwei Dachgeschossebenen und einem Spitzboden unter einem Satteldach ab. Die einzelnen Stockwerke stoßen an den Giebelseiten leicht vor.
Südlich am Gebäude befinden sich zwei Anbauten, welche erst nachträglich hinzugefügt wurden.
Zonierung:
Das Erdgeschoss zeigt heute eine nur noch eine schwer nachvollziehbare Grundrissgliederung mit zwei Längs- und ehemals drei Querzonen, wobei die nördliche Querzone aufgrund von Umbauten
und Ladeneinbau nicht mehr ablesbar ist. Die Erschließung wird hier über einen leicht nach Westen versetzten Mittellängsflur gewährleistet. Das Erdgeschoss nimmt heute im südlichen Abschnitt
eine Wohneinheit auf. Im nördlichen Bereich befindet sich eine nachträglich eingebaute Ladenzone.
Das Obergeschoss zeigt noch besser ablesbar zwei Längs- und drei Querzonen und hat sich in seiner Ursprünglichkeit noch recht gut erhalten, wenngleich hier einige Wände zusätzlich eingestellt
wurden. Das Obergeschoss nimmt heute zwei Wohneinheit auf.
Das 1. Dachgeschoss ist zu einer Wohnung ausgebaut, lässt aber die ursprüngliche Grundrissgliederung mit zwei Längs- und drei Querzonen noch am besten erkennen.
Das 2. Dachgeschoss ist unausgebaut und dient zu Lagerzwecken.
Konstruktionen
- Mischbau
- Obergeschoss(e) aus Holz
- Decken
- Balkendecke
- Gewölbe
- Tonnengewölbe
- Dachform
- Satteldach
- Dachgerüst Grundsystem
- Sparrendach, q. geb. mit liegendem Stuhl
- Sparrendach, q. geb. mit stehendem Stuhl
- Holzgerüstbau
- Unterbaugerüst, mehrstöckig
Das Obergeschoss sowie die Giebeldreiecke bestehen aus einer aus Nadelholz errichteten Fachwerkkonstruktion, welche stockwerksweise abgezimmert wurde. Die Gefache wurden hier
weitestgehend mit Lehmflechtwerk ausgefacht.
Das Dachtragwerk des Sparrendachs besteht im ersten Dachgeschoss aus einer zweifach liegenden Stuhlkonstruktion mit Mittellängsunterzug.
Im zweiten Dachgeschoss befindet sich dagegen eine zweifach stehende Stuhlkonstruktion.
Die Querbundachsen sind mit Abbundzeichen versehen, die eine durchgängige Zählung von 1-4 besitzen. Somit kann das gesamte Dachtragwerk des Gebäudes als einheitlich und zeitgleich angesehen werden.


