Ausgedinghaus
ID:
199988284818
/
Datum:
15.05.2015
Datenbestand: Bauforschung
Datenbestand: Bauforschung
Objektdaten
| Straße: | Heiligenberger Straße |
| Hausnummer: | 129 |
| Postleitzahl: | 88682 |
| Stadt-Teilort: | Weildorf |
|
|
|
| Regierungsbezirk: | Tübingen |
| Kreis: | Bodenseekreis (Landkreis) |
| Wohnplatzschlüssel: | 8435052045 |
| Flurstücknummer: | keine |
| Historischer Straßenname: | keiner |
| Historische Gebäudenummer: | keine |
| Lage des Wohnplatzes: |
|
Kartenansicht (OpenStreetMaps)
Durch Ihre Cookie-Auswahl haben Sie die Kartenansicht deaktiviert, die eigentlich hier angezeigt werden würde. Wenn Sie die Kartenansicht nutzen möchten, passen Sie bitte Ihre Cookie-Einstellungen unter Impressum & Datenschutzerklärung an.
Objektbeziehungen
| Ist Gebäudeteil von: | |
| 1. Gebäudeteil: | Gasthaus Adler , Heiligenberger Straße 129 |
|
|
|
| Besteht aus folgenden Gebäudeteilen: | |
| keine Angabe | |
Ehem. Eiskeller, Heiligenbergerstraße 129 (88682 Salem)
Brennerei und Schweinestall, Heiligenberger Straße 129 (88682 Weildorf)
Gasthaus Adler , Heiligenberger Straße 129 (88682 Weildorf)
Hauptgebäude, Heiligenberger Straße 129 (88682 Weildorf)
Holzschopf, Heiligenberger Straße 129 (88682 Weildorf)
Stallscheune, Heiligenberger Straße 129 (88682 Weildorf)
Brennerei und Schweinestall, Heiligenberger Straße 129 (88682 Weildorf)
Gasthaus Adler , Heiligenberger Straße 129 (88682 Weildorf)
Hauptgebäude, Heiligenberger Straße 129 (88682 Weildorf)
Holzschopf, Heiligenberger Straße 129 (88682 Weildorf)
Stallscheune, Heiligenberger Straße 129 (88682 Weildorf)
Bauphasen
Kurzbeschreibung der Bau-/Objektgeschichte bzw. Baugestaltungs- und Restaurierungsphasen:
Das südlich an das Hauptgebäude des Gasthauses Adler direkt angebaute Ausgedinghaus wurde nach Ausweis der dendrochronologischen Datierung wahrscheinlich in den 1860er Jahren (d) errichtet. Leider konnten keine Bohrproben mit Waldkante entnommen werden, sodass sich das Baualter nicht eindeutig bestimmen ließ.
Älterer Baubestand hat sich in dem kleinen Kellerraum unter dem westlichen Gebäudeteil sowie in der westlichen Außenwand des Erdgeschosses erhalten. Abgesehen von einer jüngeren Erneuerung der Kellerdecke hat sich somit der Baubestand der 1860er Jahre mitsamt eines Großteiles der bauzeitlichen Ausstattung bis heute weitgehend unverändert erhalten.
1. Bauphase:
(1800 - 1860)
(1800 - 1860)
Älterer, vermutlich vor 1860 datierender Baubestand (gk), darunter der Keller unter der Nordwestecke des Gebäudes und die massiv aufgemauerte westliche Außenwand des Erdgeschosses.
Betroffene Gebäudeteile:
- Erdgeschoss
- Untergeschoss(e)
Lagedetail:
- Siedlung
- Dorf
Bauwerkstyp:
- Ländl./ landwirtschaftl. Bauten/ städtische Nebengeb.
- Ausgedinghaus
Konstruktionsdetail:
- Dachform
- Satteldach
- Dachgerüst Grundsystem
- Sparrendach, q. geb. mit liegendem Stuhl
- Mischbau
- Unterbau aus Stein (gestelzt)
- Holzgerüstbau
- Geschossgerüst
- Verwendete Materialien
- Stein
- Ziegel
2. Bauphase:
(1860 - 1869)
(1860 - 1869)
Heutiges Ausgedinghaus entspricht einem weitestgehenden Neubau der 1860er Jahre. (d, gk)
Betroffene Gebäudeteile:
- Erdgeschoss
- Obergeschoss(e)
- Dachgeschoss(e)
- Ausstattung
Bauwerkstyp:
- Ländl./ landwirtschaftl. Bauten/ städtische Nebengeb.
- Ausgedinghaus
Zugeordnete Dokumentationen
- Bauhistorische Untersuchung mit Schadensaufnahme
Beschreibung
Umgebung, Lage:
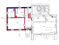
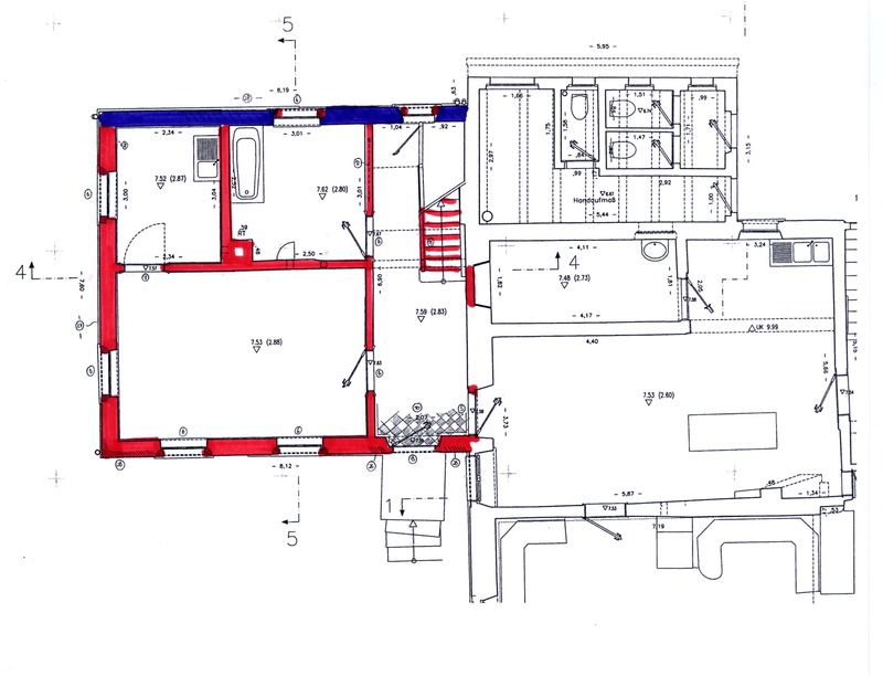
Ausgedinghaus als Teil der mehrteiligen Hofanlage "Gasthaus Adler" am nördlichen Ortsrand von Weildorf; Gebäude ist giebelständig an den Südgiebel des Hauptgebäudes angebaut.
Lagedetail:
- Siedlung
- Dorf
Bauwerkstyp:
- Ländl./ landwirtschaftl. Bauten/ städtische Nebengeb.
- Ausgedinghaus
Baukörper/Objektform (Kurzbeschreibung):
Kleines, zweigeschossiges und verputztes Gebäude über gedrungenem, rechteckigen Grundriss mit zweigeschossigem Satteldach.
Innerer Aufbau/Grundriss/
Zonierung:
Zonierung:
Nordseitiger, schmaler Querflur mit Treppe und Hauseingang, südlich im EG großer südöstlicher Eckraum, kleine Küche und kleines Bad, im Obergeschoss zwei große Kammern; Dachraum nicht ausgebaut.
Vorgefundener Zustand (z.B. Schäden, Vorzustand):
keine Angaben
Bestand/Ausstattung:
Gut erhaltene bauzeitliche Ausstattung mit Böden, Türen und Fenstern aus der 2. Hälfte des 19. Jahrhunderts.
Konstruktionen
Konstruktionsdetail:
- Mischbau
- Steinbau mit Gebäudeteilen aus Holz
- Unterbau aus Stein (gestelzt)
- Verwendete Materialien
- Backstein
- Stein
- Dachform
- Satteldach
- Dachgerüst Grundsystem
- Sparrendach, q. geb. mit liegendem Stuhl
- Detail (Dach)
- Dachüberstand
Konstruktion/Material:
Erdgeschoss und Obergeschoss sind von massiven Außenwänden umfangen, während die Innenwände aus verputztem Fachwerk bestehen. Den oberen Abschluss bildet ein zweigeschossiges Satteldach mit einer liegenden verzapften Stuhlkonstruktion.


