Hotzenwaldhaus
ID:
192788909721
/
Datum:
29.10.2010
Datenbestand: Bauforschung
Datenbestand: Bauforschung
Objektdaten
| Straße: | Schwarzwälder Freilichtmuseum Vogtsbauernhof |
| Hausnummer: | keine |
| Postleitzahl: | 77793 |
| Stadt-Teilort: | Gutach (Schwarzwaldbahn) |
|
|
|
| Regierungsbezirk: | Freiburg |
| Kreis: | Ortenaukreis (Landkreis) |
| Wohnplatzschlüssel: | 8317039012 |
| Flurstücknummer: | keine |
| Historischer Straßenname: | keiner |
| Historische Gebäudenummer: | keine |
| Lage des Wohnplatzes: |
|
| Geo-Koordinaten: | 48,2706° nördliche Breite, 8,1989° östliche Länge |
Kartenansicht (OpenStreetMaps)
Durch Ihre Cookie-Auswahl haben Sie die Kartenansicht deaktiviert, die eigentlich hier angezeigt werden würde. Wenn Sie die Kartenansicht nutzen möchten, passen Sie bitte Ihre Cookie-Einstellungen unter Impressum & Datenschutzerklärung an.
Objektbeziehungen
| Ist Gebäudeteil von: | |
| 1. Gebäudeteil: | Schwarzwälder Freilichtmuseum Vogtsbauernhof |
|
|
|
| Besteht aus folgenden Gebäudeteilen: | |
| keine Angabe | |
Badische Schwarzwaldbahn 4250
Schwarzwälder Freilichtmuseum Vogtsbauernhof (77793 Gutach (Schwarzwaldbahn), keine keine)
Evang. Kirche St. Peter, Kirchstraße 7 (77793 Gutach (Schwarzwaldbahn))
Falkenhof (77793 Gutach (Schwarzwaldbahn), Schwarzwälder Freilichtmuseum Vogtsbauernhof)
Hippenseppenhof (77793 Gutach (Schwarzwaldbahn), Schwarzwälder Freilichtmuseum Vogtsbauernhof)
Lorenzenhof, Schwarzwälder Freilichtmuseum Vogtsbauernhof (77793 Gutach (Schwarzwaldbahn))
Schauinslandhaus, Schwarzwälder Freilichtmuseum Vogtsbauernhof (77793 Gutach (Schwarzwaldbahn))
Tagelöhnerhaus, Schwarzwälder Freilichtmuseum Vogtsbauernhof (77793 Gutach (Schwarzwaldbahn))
Vogtsbauernhof (77793 Gutach (Schwarzwaldbahn), Schwarzwälder Freilichtmuseum Vogtsbauernhof keine)
Gasthaus Linde (77793 Gutach/Schwarzwaldbahn, Ramsbachweg 2)
Ehem. Wohn- und Wirtschaftsgebäude Effringer Schlössle, Schwarzwälder Freilichtmuseum Vogtsbauernhof (77793 Gutach)
Schwarzwälder Freilichtmuseum Vogtsbauernhof (77793 Gutach (Schwarzwaldbahn), keine keine)
Evang. Kirche St. Peter, Kirchstraße 7 (77793 Gutach (Schwarzwaldbahn))
Falkenhof (77793 Gutach (Schwarzwaldbahn), Schwarzwälder Freilichtmuseum Vogtsbauernhof)
Hippenseppenhof (77793 Gutach (Schwarzwaldbahn), Schwarzwälder Freilichtmuseum Vogtsbauernhof)
Lorenzenhof, Schwarzwälder Freilichtmuseum Vogtsbauernhof (77793 Gutach (Schwarzwaldbahn))
Schauinslandhaus, Schwarzwälder Freilichtmuseum Vogtsbauernhof (77793 Gutach (Schwarzwaldbahn))
Tagelöhnerhaus, Schwarzwälder Freilichtmuseum Vogtsbauernhof (77793 Gutach (Schwarzwaldbahn))
Vogtsbauernhof (77793 Gutach (Schwarzwaldbahn), Schwarzwälder Freilichtmuseum Vogtsbauernhof keine)
Gasthaus Linde (77793 Gutach/Schwarzwaldbahn, Ramsbachweg 2)
Ehem. Wohn- und Wirtschaftsgebäude Effringer Schlössle, Schwarzwälder Freilichtmuseum Vogtsbauernhof (77793 Gutach)
Bauphasen
1. Bauphase:
(1979 - 1980)
(1979 - 1980)
Rekonstruktion erbaut nach dem Vorbild des 1756 errichteten Klausenhofes in Großherrischwand (920 m ü. M.).
Betroffene Gebäudeteile:
keine
Bauwerkstyp:
- Ländl./ landwirtschaftl. Bauten/ städtische Nebengeb.
- Bauernhaus
Beschreibung
Umgebung, Lage:
Erbaut: 1979/80 nach dem Vorbild des 1756 errichteten Klausenhofes in Großherrischwand (920 m ü. M.). Der vermutlich nach seinem einstmaligen Besitzer Nikolaus Bähr (1858 - 1899) genannte Klausenhof ist das letzte noch in der ursprünglichen Bauweise erhaltene Hotzenwaldhaus und wurde im Jahr 1979 abgebaut und zur freilichtmusealen Nutzung an anderer Stelle wiedererrichtet. Allerdings nicht vom Schwarzwälder Freilichtmuseum, sondern von der Gemeinde Herrischried. In Gutach entschied man sich daher für einen Nachbau nach maßstabsgetreuer Raumaufteilung und Holzbaukonstruktion. Aufgrund der geographischen Lage des Standorts im Museum wurde das Haus seitenverkehrt aufgebaut und zeigt nun auch, wie sein ursprüngliches Vorbild, mit dem Wirtschaftsbereich zur Wetterseite.
Verbreitungsgebiet: In der ehemals vorderösterreichischen Herrschaft Hauenstein, die sich von der Wera im Westen bis zur Schlücht im Osten erstreckte. Im Süden bildet das Hochrheintal die Grenze, im Norden die Linie zwischen Todtmoos und St. Blasien. Seit der Zugehörigkeit zu Baden im Jahr 1806 hat sich die Bezeichnung Hotzenwald eingebürgert. Als „Hoze“ wurde eine enggefältete, schwarze Pumphose der Männertracht bezeichnet, die bis Mitte des 19. Jahrhunderts getragen wurde.
Verbreitungsgebiet: In der ehemals vorderösterreichischen Herrschaft Hauenstein, die sich von der Wera im Westen bis zur Schlücht im Osten erstreckte. Im Süden bildet das Hochrheintal die Grenze, im Norden die Linie zwischen Todtmoos und St. Blasien. Seit der Zugehörigkeit zu Baden im Jahr 1806 hat sich die Bezeichnung Hotzenwald eingebürgert. Als „Hoze“ wurde eine enggefältete, schwarze Pumphose der Männertracht bezeichnet, die bis Mitte des 19. Jahrhunderts getragen wurde.
Lagedetail:
- Siedlung
- Dorf
Bauwerkstyp:
- Ländl./ landwirtschaftl. Bauten/ städtische Nebengeb.
- Bauernhaus
- Eindachhof
Baukörper/Objektform (Kurzbeschreibung):
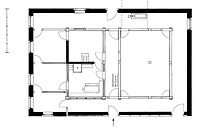
Maße des Hauses: Länge: 18,55 m, Breite: 12,25 m, Höhe: 9,05 m
Haustyp: Hotzenwald- oder Hauensteiner Haus. Benannt nach seinem Verbreitungsgebiet.
Der Hotzenwald als niederschlagsreiche und windige Hochfläche mit kalten Talmulden hat diesen Haustyp geprägt. Die Häuser stehen auf Plateauhöhen oder an Berghängen, und zwar mit der Firstlinie parallel zum Hang. Wohn- und Wirtschaftsbereich wurden auch hier unter einem Dach vereint. Ein quer durch das Haus laufender Gang trennt beide Bereiche. Der Wirtschaftsbereich mit Stall und Umgang liegt Richtung Wetterseite, der Wohnbereich befindet sich geborgen dahinter. Zusätzlich schützen auf der Wetterseite gepflanzte Bäume, Schwarzerlen oder Ebereschen, das Haus.
Das Dach ist beidseitig abgewalmt, d.h. die Walme enden auf gleicher Höhe wie das Hauptdach. Es war mit Roggenstroh gedeckt, das im Museum durch Reet ersetzt wurde. Roggenstroh in erforderlicher Qualität und Menge ist kaum noch erhältlich. Besonders sorgfältig wird der First eingedeckt. Zusätzliche Firstbänder und Windgerten sichern die Strohdeckung und machen das Dach windresistent.
Das zweigeschossige Firstständerhaus steht auf einem Schwellenkranz. Vier in die Schwelle eingezapfte Ständer tragen den Firstbaum. Diese Ständer werden im Hotzenwald First- oder Hochstuden genannt. Um gegen die Winde geschützt zu sein, wurde der Dachstuhl in Längs- und Querrichtung mehrfach durch Streben abgesichert.
Auf der rückwärtigen Längsseite führt über dem Wirtschaftteil eine aufgeschüttete Erdrampe durch das „Einfahrtshäusle“ in den Dachraum.
Die Außenwände des Hauses sind aus Stein. Erst beim Betreten wird deutlich, dass das eigentliche Haus in Ständer-Bohlen-Bauweise holzgezimmert ist. Zwischen der gemauerten Außenwand und dem holzgezimmerten Hauskörper umläuft ein Umgang das Haus auf drei Seiten. Dieser Gang schützt das Haus und hält die Wärme im Innern. Vor der Stube wird der Gang als Schild bezeichnet. Im Sommer wurden die Gangfenster vor der Stube herausgehoben, damit mehr Sonne ins Haus fallen konnte. Der Gang umlief das Haus ursprünglich rundum und wurde erst später hinter dem Wohnbereich in drei weitere Kammern umgewandelt.
Haustyp: Hotzenwald- oder Hauensteiner Haus. Benannt nach seinem Verbreitungsgebiet.
Der Hotzenwald als niederschlagsreiche und windige Hochfläche mit kalten Talmulden hat diesen Haustyp geprägt. Die Häuser stehen auf Plateauhöhen oder an Berghängen, und zwar mit der Firstlinie parallel zum Hang. Wohn- und Wirtschaftsbereich wurden auch hier unter einem Dach vereint. Ein quer durch das Haus laufender Gang trennt beide Bereiche. Der Wirtschaftsbereich mit Stall und Umgang liegt Richtung Wetterseite, der Wohnbereich befindet sich geborgen dahinter. Zusätzlich schützen auf der Wetterseite gepflanzte Bäume, Schwarzerlen oder Ebereschen, das Haus.
Das Dach ist beidseitig abgewalmt, d.h. die Walme enden auf gleicher Höhe wie das Hauptdach. Es war mit Roggenstroh gedeckt, das im Museum durch Reet ersetzt wurde. Roggenstroh in erforderlicher Qualität und Menge ist kaum noch erhältlich. Besonders sorgfältig wird der First eingedeckt. Zusätzliche Firstbänder und Windgerten sichern die Strohdeckung und machen das Dach windresistent.
Das zweigeschossige Firstständerhaus steht auf einem Schwellenkranz. Vier in die Schwelle eingezapfte Ständer tragen den Firstbaum. Diese Ständer werden im Hotzenwald First- oder Hochstuden genannt. Um gegen die Winde geschützt zu sein, wurde der Dachstuhl in Längs- und Querrichtung mehrfach durch Streben abgesichert.
Auf der rückwärtigen Längsseite führt über dem Wirtschaftteil eine aufgeschüttete Erdrampe durch das „Einfahrtshäusle“ in den Dachraum.
Die Außenwände des Hauses sind aus Stein. Erst beim Betreten wird deutlich, dass das eigentliche Haus in Ständer-Bohlen-Bauweise holzgezimmert ist. Zwischen der gemauerten Außenwand und dem holzgezimmerten Hauskörper umläuft ein Umgang das Haus auf drei Seiten. Dieser Gang schützt das Haus und hält die Wärme im Innern. Vor der Stube wird der Gang als Schild bezeichnet. Im Sommer wurden die Gangfenster vor der Stube herausgehoben, damit mehr Sonne ins Haus fallen konnte. Der Gang umlief das Haus ursprünglich rundum und wurde erst später hinter dem Wohnbereich in drei weitere Kammern umgewandelt.
Innerer Aufbau/Grundriss/
Zonierung:
Zonierung:
Bereits die Bauweise mit dem umlaufenden Gang und der darin befindlichen Brunnenanlage macht deutlich, dass die Lebensbedingungen im Hotzenwald massiv von den kälteren Jahreszeiten bestimmt waren. Wie das Schauinslandhaus musste auch das Hotzenwaldhaus die Möglichkeit gewähren, dass unter einem Dach und auch in den langen Winterzeiten gelebt und gearbeitet werden konnte. In der Regel musste in zwei Dritteln des Jahres geheizt werden. Die Küche, zweigeschossig, fensterlos und finster, war nicht nur das räumliche Zentrum des Hauses. In ihr wurden Würste und Schinken geräuchert. Von ihr aus stieg die Wärme in die Schlafkammer im Dachgeschoss. Von ihr aus wurden der Kachelofen und die Kunst – die übrigens original aus dem ursprünglichen Klausenhof übernommen werden konnten - in der Stube befeuert.
Vorgefundener Zustand (z.B. Schäden, Vorzustand):
keine Angaben
Bestand/Ausstattung:
keine Angaben
Konstruktionen
Konstruktionsdetail:
- Verwendete Materialien
- Stein
- Holzgerüstbau
- Hochfirstständergerüst
- Wandfüllung/-verschalung/-verkleidung
- Bohlen
- Dachform
- Satteldach mit beidseitigem Vollwalm
- Detail (Dach)
- Dachüberstand
Konstruktion/Material:
keine Angaben



