Tagelöhnerhaus
ID:
112099965912
/
Datum:
29.10.2010
Datenbestand: Bauforschung
Datenbestand: Bauforschung
Objektdaten
| Straße: | Schwarzwälder Freilichtmuseum Vogtsbauernhof |
| Hausnummer: | keine |
| Postleitzahl: | 77793 |
| Stadt-Teilort: | Gutach (Schwarzwaldbahn) |
|
|
|
| Regierungsbezirk: | Freiburg |
| Kreis: | Ortenaukreis (Landkreis) |
| Wohnplatzschlüssel: | 8317039012 |
| Flurstücknummer: | keine |
| Historischer Straßenname: | keiner |
| Historische Gebäudenummer: | keine |
| Lage des Wohnplatzes: |
|
| Geo-Koordinaten: | 48,2708° nördliche Breite, 8,1978° östliche Länge |
Kartenansicht (OpenStreetMaps)
Durch Ihre Cookie-Auswahl haben Sie die Kartenansicht deaktiviert, die eigentlich hier angezeigt werden würde. Wenn Sie die Kartenansicht nutzen möchten, passen Sie bitte Ihre Cookie-Einstellungen unter Impressum & Datenschutzerklärung an.
Objektbeziehungen
| Ist Gebäudeteil von: | |
| 1. Gebäudeteil: | Schwarzwälder Freilichtmuseum Vogtsbauernhof |
|
|
|
| Besteht aus folgenden Gebäudeteilen: | |
| keine Angabe | |
Badische Schwarzwaldbahn 4250
Schwarzwälder Freilichtmuseum Vogtsbauernhof (77793 Gutach (Schwarzwaldbahn), keine keine)
Evang. Kirche St. Peter, Kirchstraße 7 (77793 Gutach (Schwarzwaldbahn))
Falkenhof (77793 Gutach (Schwarzwaldbahn), Schwarzwälder Freilichtmuseum Vogtsbauernhof)
Hippenseppenhof (77793 Gutach (Schwarzwaldbahn), Schwarzwälder Freilichtmuseum Vogtsbauernhof)
Hotzenwaldhaus (77793 Gutach (Schwarzwaldbahn), Schwarzwälder Freilichtmuseum Vogtsbauernhof)
Lorenzenhof, Schwarzwälder Freilichtmuseum Vogtsbauernhof (77793 Gutach (Schwarzwaldbahn))
Schauinslandhaus, Schwarzwälder Freilichtmuseum Vogtsbauernhof (77793 Gutach (Schwarzwaldbahn))
Vogtsbauernhof (77793 Gutach (Schwarzwaldbahn), Schwarzwälder Freilichtmuseum Vogtsbauernhof keine)
Gasthaus Linde (77793 Gutach/Schwarzwaldbahn, Ramsbachweg 2)
Ehem. Wohn- und Wirtschaftsgebäude Effringer Schlössle, Schwarzwälder Freilichtmuseum Vogtsbauernhof (77793 Gutach)
Schwarzwälder Freilichtmuseum Vogtsbauernhof (77793 Gutach (Schwarzwaldbahn), keine keine)
Evang. Kirche St. Peter, Kirchstraße 7 (77793 Gutach (Schwarzwaldbahn))
Falkenhof (77793 Gutach (Schwarzwaldbahn), Schwarzwälder Freilichtmuseum Vogtsbauernhof)
Hippenseppenhof (77793 Gutach (Schwarzwaldbahn), Schwarzwälder Freilichtmuseum Vogtsbauernhof)
Hotzenwaldhaus (77793 Gutach (Schwarzwaldbahn), Schwarzwälder Freilichtmuseum Vogtsbauernhof)
Lorenzenhof, Schwarzwälder Freilichtmuseum Vogtsbauernhof (77793 Gutach (Schwarzwaldbahn))
Schauinslandhaus, Schwarzwälder Freilichtmuseum Vogtsbauernhof (77793 Gutach (Schwarzwaldbahn))
Vogtsbauernhof (77793 Gutach (Schwarzwaldbahn), Schwarzwälder Freilichtmuseum Vogtsbauernhof keine)
Gasthaus Linde (77793 Gutach/Schwarzwaldbahn, Ramsbachweg 2)
Ehem. Wohn- und Wirtschaftsgebäude Effringer Schlössle, Schwarzwälder Freilichtmuseum Vogtsbauernhof (77793 Gutach)
Bauphasen
Kurzbeschreibung der Bau-/Objektgeschichte bzw. Baugestaltungs- und Restaurierungsphasen:
Der Erbauer des Hauses, Anton (Toni) Kern (geboren 1789) war ein Sohn des Hirschwirtes Franz Joseph Kern. Von 1819 bis 1921 waren die Besitzer als Weber tätig. Die geringfügige Landwirtschaft wurde als Nebenerwerb bis 1993 betrieben. Die letzten Bewohner waren zwei Junggesellen, die von 1981 bis 1993 allein im Haus lebten. Der Besitz schwankte zwischen 0,75 bis 1,89 Hektar. Die Bewohner verdienten als Weber, Taglöhner und Waldarbeiter ihr Einkommen. Viehhaltung und Ackerbau dienten zur Deckung des Eigenbedarfs. Das Wirtstonishaus wurde, wie 1993 verlassen, komplett samt Inneneinrichtung ins Museum übernommen. Die Haushaltsgegenstände stammen vorwiegend aus den 1950er bis 1970er Jahren.
1. Bauphase:
(1819 - 1993)
(1819 - 1993)
1819 im Oberprechtal erbaut und bis 1993 bewirtschaftet
Betroffene Gebäudeteile:
keine
2. Bauphase:
(1935)
(1935)
Umbau: Holzaußenwand im OG durch Ziegelmauerwerk ersetzt und Dach mit Faserzementplatten gedeckt
Betroffene Gebäudeteile:
keine
3. Bauphase:
(1950)
(1950)
Um 1950 wurde der offene Schlot in der Küche durch einen Kamin ersetzt.
Betroffene Gebäudeteile:
keine
4. Bauphase:
(2001 - 2002)
(2001 - 2002)
Translozierung
Betroffene Gebäudeteile:
keine
Beschreibung
Umgebung, Lage:
Erbaut: 1819 in Oberprechtal (550 m ü.M.).
Lagedetail:
- Siedlung
- Dorf
Bauwerkstyp:
- Ländl./ landwirtschaftl. Bauten/ städtische Nebengeb.
- Eindachhof
- Tagelöhnerhaus
Baukörper/Objektform (Kurzbeschreibung):
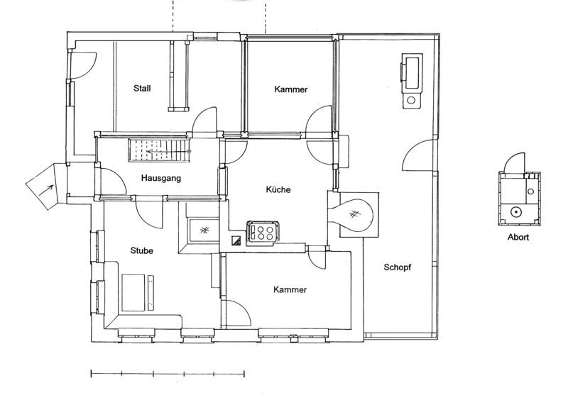
Die Lage am Hang machte eine starke Stelzung des Gebäudes erforderlich. Im dafür gemauerten Sockelgeschoss sind Schweinestall und Keller untergebracht. Das Obergeschoss war ursprünglich in Ständer-Bohlen-Bauweise errichtet, das Dach mit Stroh gedeckt. Bei einem Umbau im Jahr 1935 wurde die Holzaußenwand im ersten Obergeschoss durch Ziegelmauerwerk ersetzt. Das Dach erhielt eine Deckung mit Faserzementplatten. Bei einer weiteren Baumaßnahme um 1950 wurde der offene Schlot in der Küche durch einen geschlossenen Kamin ersetzt.
Wie die großen Schwarzwaldhäuser beherbergt auch das Tagelöhnerhaus
unter einem Dach Wohnung, Stall und Wirtschaftsräume. Der Wohnteil liegt zum Tal hin, der Stall zur Bergseite. Der Brunnen mit Milchhäuschen befindet sich im angebauten Schopf, der über die Küchentür direkt mit dem Haus verbunden ist.
Der Dachraum ist vom zweiten Obergeschoss über eine Treppe und von der Bergseite her über eine Hocheinfahrt erreichbar.
Wie die großen Schwarzwaldhäuser beherbergt auch das Tagelöhnerhaus
unter einem Dach Wohnung, Stall und Wirtschaftsräume. Der Wohnteil liegt zum Tal hin, der Stall zur Bergseite. Der Brunnen mit Milchhäuschen befindet sich im angebauten Schopf, der über die Küchentür direkt mit dem Haus verbunden ist.
Der Dachraum ist vom zweiten Obergeschoss über eine Treppe und von der Bergseite her über eine Hocheinfahrt erreichbar.
Innerer Aufbau/Grundriss/
Zonierung:
Zonierung:
keine Angaben
Vorgefundener Zustand (z.B. Schäden, Vorzustand):
keine Angaben
Bestand/Ausstattung:
keine Angaben
Konstruktionen
Konstruktionsdetail:
- Verwendete Materialien
- Ziegel
- Dachform
- Satteldach mit Halbwalm-/Zweidrittelwalm
Konstruktion/Material:
keine Angaben



