Unteres Schloss
Datenbestand: Bauforschung
Objektdaten
| Straße: | Hauptstraße |
| Hausnummer: | 11 |
| Postleitzahl: | 79219 |
| Stadt-Teilort: | Staufen |
|
|
|
| Regierungsbezirk: | Freiburg |
| Kreis: | Breisgau-Hochschwarzwald (Landkreis) |
| Wohnplatzschlüssel: | 8315108015 |
| Flurstücknummer: | keine |
| Historischer Straßenname: | keiner |
| Historische Gebäudenummer: | keine |
| Lage des Wohnplatzes: |
|
Kartenansicht (OpenStreetMaps)
Wohnhaus , Auf dem Graben 12 (79219 Staufen)
Wohnhaus, Auf dem Graben 44/46 (79219 Staufen)
Wohn- und Geschäftshaus, Auf dem Graben 48 (79219 Staufen)
Wohnhaus, Freihofgasse 1 (79219 Staufen)
Wohnhaus, Spitalstraße 19 (79219 Staufen)
Wohnhaus, Spitalstraße 20 (79219 Staufen)
Wohnhaus, Spitalstraße 22 (79219 Staufen)
Wohnhaus, Spitalstraße 26 (79219 Staufen)
Wohnhaus, Spitalstraße 30 (79219 Staufen)
Ehem. Spital, Spitalstraße 33 (79219 Staufen)
Wohnhaus, St.-Johannesgasse 3 (79219 Staufen)
Wohnhaus, St.-Johannesgasse 14 (79219 Staufen)
Wohnhaus, St.-Johannesgasse 15 (79219 Staufen)
Wohnhaus, St.-Johannesgasse 24 (79219 Staufen)
Ehem. Scheune, St.-Johannesgasse 26 (79219 Staufen)
Wohnhaus, St.-Johannesgasse 28 (79219 Staufen)
Wohnhaus, St.-Johannesgasse 2 (79219 Staufen)
Wohnhaus, St.-Johannesgasse 6 (79219 Staufen)
Wohnhaus/Scheune, St.-Johannesgasse 7 (79219 Staufen)
Bauphasen
Bei dem zweigeschossigen Flügelbau mit dem an der nördlichen Schnittstelle stehenden Treppenturm handelt es sich um das ehemalige Stadtschloss der Herren von Staufen. In deren Besitz blieb das Gebäude bis zum Beginn des 17. Jahrhunderts. Nach dem Aussterben der Herren von Staufen wechselten sich mehrere Eigentümer ab. Ab 1606 war es in vorderösterreichischem Besitz, um dann im Jahr 1628 von den Schauenburgern übernommen zu werden. Im Jahr 1738 wurde es zum Amtshaus des Klosters St. Blasien, bis es dann von 1806 bis 1936 als Bezirksamt diente. Der heutige, unter anderem vom staatlichen Forstamt genutzte Baukomplex ist das Ergebnis zeitlich unterschiedlicher Baumaßnahmen, wobei die im Jahr 2000 durchgeführte Kurzuntersuchung nicht den Anspruch erhebt, sowohl deren Anfänge wie auch deren chronologische Abfolge umfassend darstellen zu können. Nach Auswertung der aufgenommenen Befunde und der dendrochronologischen Daten kann folgender Bauablauf skizziert werden:
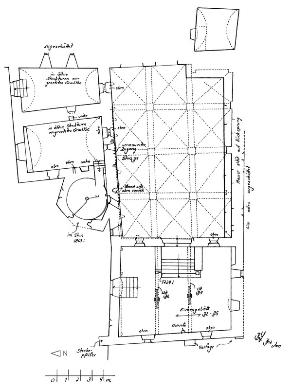
Den ältesten erkannten Bauteil bildet ein in Ost-West-Richtung verlaufender Keller. Während seine ehemalige Längenausdehnung wohl mit der des heutigen Tiefkellers identisch ist, besteht bei der Festlegung der ursprünglichen Breite eine gewisse Unsicherheit. So endet die Südwand auffallend weit vor der östlichen Schmalseite, um dann erst nach einem deutlichen Versprung wieder zur Ostwand abzuwinkeln. Die bauliche Begründung für diesen Absatz ist unbekannt, zumal er sich im Erdgeschoss nicht weiter fortsetzt und es sich bei dem angrenzenden Gewölbekeller um einen späteren Anbau handelt. Nicht auszuschließen ist jedoch die Möglichkeit, dass der sich nach dem Versprung fortsetzende Mauerzug den Rest der ursprünglichen Kellersüdwand darstellt. Demnach hätte der erste Keller eine um etwa ein Drittel geringere Breite als der heutige Tiefkeller besessen. Die ursprüngliche Erschließung dieser ältesten Kelleranlage konnte innerhalb der Nordwand erkannt werden. Die ehemalige Öffnung wurde später vermauert, zeichnet sich aber innerhalb der Mauer durch einen Eichensturz und die beiden seitlichen Vertikalbegrenzungen ab. Darüber hinaus deutet eine an der Mauergegenseite vorhandene Putzfläche die Überputzung des zugehörigen Rundbogenportals an. Die dendrochronologische Untersuchung des eichenen Holzsturzes ergab, dass der zugehörige Baum in den Jahren 1424 (±10) (d) gefällt wurde.
Der bislang beschriebene Keller wie auch das darüber zu vermutende Gebäude wurde in einem folgenden Schritt in Richtung Süden aufgeweitet. Mit seiner neuen Breite reichte nun der Keller bis zu dem vorspringenden Mauerbereich der heutigen Südwand. Überlagert durch nachfolgende Umbauten haben sich offenbar von diesem Erweiterungsbau keine Baustrukturen mehr im Überbau erhalten. Eine dieser jüngeren Baumaßnahmen bezieht sich auf den oberirdischen Abbruch der Südwand, deren Ersatz und die Verlängerung nach Westen. Die dabei ausgeführte Erweiterung kann im Kellerbereich anschaulich nachvollzogen werden. Der im Westen angebaute Keller nimmt innerhalb des Gesamtgrundrisses die zweitgrößte Fläche ein, wobei dieser Abschnitt im Vergleich zum Altkeller nur bedingt als Keller anzusprechen ist. Deutlich geringer in das Erdreich eingetieft, handelt es sich um ein hohes, weit über das Außengelände anstehendes Sockelgeschoss. Ein zeitlicher Ansatz für diesen umfassenden Neubau ergibt sich aus den Ergebnissen der dendrochronologischen Untersuchungen. So datieren sowohl die Deckenbalken über dem Sockelgeschoss wie auch der Turmhelm des an der Nordseite stehenden Treppenturmes in die Jahre 1569/ 70 (d).
Ein weiterer Bestandteil dieser Baumaßnahme ist die Überbauung des ursprünglichen Kellerabgangs und die damit verbundene Aufweitung zu einem östlich des Treppenturmes gelegenen Seitenflügel.
In den Jahren 1668/ 69 (d) erhielt der Flügelbau sein heute vorhandenes Dachwerk, wobei der ehemalige Westabschluss als Steilgiebel ausgeführt wurde. In Anlehnung an diesen Giebel war an der Nordtraufe ein bauzeitliches Querhaus abgezimmert. Dieses Querhaus diente wohl als Ladegiebel und nahm im 1. Dachstock einen mit Fachwerkwänden geschlossenen Raum auf.
In welchem Umfang sich die um 1669 erfolgte Dachwerkerneuerung auf eine Neugestaltung des Unterbaus auswirkte, ist unbekannt.
Die nächstjüngeren Umbauten datieren in die erste Hälfte des 18. Jahrhunderts. So erhielt das Gebälk über dem Sockelgeschoss in den Jahren 1714/ 15 (d) eine veränderte Unterstützung. Zuvor nur durch einen Unterzug getragen, entlastet sich das alte Gebälk seither auf zwei Unterzügen. Diese Maßnahme steht offensichtlich in einem engen Zusammenhang mit der Einwölbung des Ostkellers. Die dort in dieser Zeit eingebauten Kreuzgewölbe bedingten innerhalb der Westwand eine auf den Gewölbeschub reagierende Gegenmaßnahme. In diesem Sinne sind dann auch die beiden Strebepfeiler zu sehen, welche nach einer inschriftlichen Datierung am nördlichen Zusatzständer im Jahr 1724 neben den inneren Kellerzugang gesetzt wurden.
Weitere Umbauten beziehen sich auf die Neugestaltung der Dachwerkabschlüsse, den Einbau eines Überzuges über dem westlichen Dachboden in den Jahren 1886/ 87 (d) und auf die Veränderungen innerhalb der beiden Wohngeschosse.
(1424)
- Untergeschoss(e)
- Siedlung
- Stadt
- Residenz- und Hofhaltungsbauten
- Schloss
(1569)
(1668)
- Dachgeschoss(e)
(1714)
(1724)
- Untergeschoss(e)
(1886)
- Dachgeschoss(e)
Zugeordnete Dokumentationen
- Dendrochronologische Datierung
- Bauhistorische Kurzanalyse
Beschreibung
- Siedlung
- Stadt
- Öffentliche Bauten/ herrschaftliche Einrichtungen
- Amtsgebäude
- Residenz- und Hofhaltungsbauten
- Schloss
Zonierung:
Konstruktionen
- Dachform
- Satteldach mit beidseitigem Vollwalm
- Schleppgaube(n)
- Sechseckdach/-helm
- Dachgerüst Grundsystem
- Sparrendach, q. geb. mit liegendem Stuhl
- Dachgerüst, verstärkende Einbauten
- abgesprengte Quer- und Längsbünde
- Gewölbe
- Kreuzgratgewölbe
- Steinbau Mauerwerk
- Wacken/Kiesel
In den Jahren 1668/69 (d) erhielt der Flügelbau sein heute vorhandenes Dachwerk, wobei der ehemalige Westabschluss als Steilgiebel ausgeführt wurde. In Anlehnung an diesen Giebel war an der Nordtraufe ein bauzeitliches Querhaus abgezimmert. Dieses Querhaus diente wohl als Ladegiebel und nahm im 1. Dachstock einen mit Fachwerkwänden geschlossenen Raum auf.
Das die Sparren unterstützende Gerüst des Dachwerks bilden abgesprengte, einen verzapften liegenden Stuhl ausbildende Quer- und Längsbünde. Eingebunden in die Querbünde sind seitlich angeordnete Zughölzer einer Hängekonstruktion. Letztere dienten in aller Regel zur Anlage größerer Saaleinheiten, die aber im angetroffenen Zustand des 1. Obergeschosses nicht mehr ablesbar waren.



