Quereinhaus (abgegangen)
ID:
151213409274
/
Datum:
26.09.2007
Datenbestand: Bauforschung
Datenbestand: Bauforschung
Objektdaten
| Straße: | Torweg |
| Hausnummer: | 1 |
| Postleitzahl: | 72160 |
| Stadt-Teilort: | Horb am Neckar, Grünmettstetten |
|
|
|
| Regierungsbezirk: | Karlsruhe |
| Kreis: | Freudenstadt (Landkreis) |
| Wohnplatzschlüssel: | 8237040021 |
| Flurstücknummer: | keine |
| Historischer Straßenname: | keiner |
| Historische Gebäudenummer: | keine |
| Lage des Wohnplatzes: |
|
Kartenansicht (OpenStreetMaps)
Durch Ihre Cookie-Auswahl haben Sie die Kartenansicht deaktiviert, die eigentlich hier angezeigt werden würde. Wenn Sie die Kartenansicht nutzen möchten, passen Sie bitte Ihre Cookie-Einstellungen unter Impressum & Datenschutzerklärung an.
Ehem. Gasthaus "Adler", Steinachstraße 9 (72160 Grünmettstetten)
Bauphasen
Kurzbeschreibung der Bau-/Objektgeschichte bzw. Baugestaltungs- und Restaurierungsphasen:
Das Haus wurde im Jahr 1686 als kleines Quereinhaus mit zweizonigem Wohnteil und einer als dritte Zone angehängten Scheunentenne errichtet. Spätere z. T. eingreifende Substanzauswechslungen veränderten die Grundstruktur nur unwesentlich, die ursprüngliche Raumaufteilung blieb zumindest im Obergeschoss bis heute bestehen. Kleinere Erweiterungen des Bauvolumens brachten die Überbauung des Torweges durch Verlängerung des Daches nach Süden und die teilweise Schließung der ursprünglichen offenen Galerie auf der Ostseite des Obergeschosses. Diese späteren Maßnahmen, die alle im 19. und 20. Jahrhundert vorgenommen wurden, wurden nicht genauer datiert.
Das Gebäude wurde nach 1991 abgebrochen und durch einen Neubau ersetzt.
1. Bauphase:
(1686)
(1686)
Vier dendrochronologische Bohrproben aus unterschiedlichen Teilen datieren das Gebäude einheitlich auf das Jahr 1686 (d, Sommerfällung 1686).
Betroffene Gebäudeteile:
keine
2. Bauphase:
(1800 - 1950)
(1800 - 1950)
Nachträgliche Veränderungen wurden zeitlich nicht genauer datiert. Umbaumaßnahmen waren die Verlängerung des Daches über den Torweg, Einrichtung eines Abtrittes, und entfernen der Stubenverbohlung.
Im Erdgeschoss waren Substanzauswechslungen, vor allem im landwirtschaftlich genutzten Erdgeschoss nötig.
Im Erdgeschoss waren Substanzauswechslungen, vor allem im landwirtschaftlich genutzten Erdgeschoss nötig.
Betroffene Gebäudeteile:
keine
Zugeordnete Dokumentationen
- Bauhistorisches Gutachten
Beschreibung
Umgebung, Lage:
Das kleine Quereinhaus liegt am locker bebauten südlichen Ortsrand von Grünmettstetten in mäßig nach Süden ansteigendem Gelände. Sein First ist fast exakt von Norden nach Süden ausgerichtet, weshalb der Hang terrassiert werden musste, um an den Längsseiten des Gebäudes ein halbwegs ebenes Niveau zu erhalten. Das Haus überbaut mit seinem südlichen Ende den - vermutlich deshalb so genannten - Torweg. Der Wohnteil ist nicht zur Straße, sondern nach Norden, hangabwärts, ausgerichtet.
Lagedetail:
- Siedlung
- Dorf
Bauwerkstyp:
- Ländl./ landwirtschaftl. Bauten/ städtische Nebengeb.
- Bauernhaus
Baukörper/Objektform (Kurzbeschreibung):
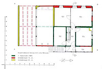
Das Haus vereinigt unter einem lang gestreckten, zweigeschossig unterteilten Satteldach den zweigeschossigen Wohnteil im Norden, südlich anschließend eine Scheunentenne und am Südende die Überbauung des Torweges, die bis zur Dachbalkenlage als Durchfahrt geöffnet ist. Von der etwa 15m auf 8.5m messenden Grundfläche entfällt etwas mehr als die Hälfte auf den Wohnteil. Das Dach weist bei einer Höhe von 5.2m eine Neigung von 51° auf.
Innerer Aufbau/Grundriss/
Zonierung:
Zonierung:
Das land- und hauswirtschaftlichen Zwecken vorbehaltene Erdgeschoss des Wohnteils zeigt eine klare zweischiffige und zweizonige Gliederung, wobei die Schiffe annähernd gleich breit sind. Der östliche Raum der südlichen Zone hat im wesentlichen Verteilerfunktionen.
Das Obergeschoss wird zwar ebenfalls durch eine Längswand in zwei Schiffe geteilt, doch fehlt eine dem Erdgeschoss vergleichbare Zoneneinteilung. Vielmehr legen sich vier Räume U-förmig um den schmalen, leicht außermittig im östlichen Schiff angeordneten Flur. Der Flur enthält außerdem die Treppen zum Erdgeschoss und zum Dach. Der Anbau auf der Ostseite nimmt neben einem kleinen Vorraum den Abtritt auf.
Die Scheunentenne öffnet sich mittels eines zweiflügligen Tores in der Ostwand in ganzer Breite zum Hof. Sie reicht nicht über beide Vollgeschosse des Wohnteils, sondern nur bis zu einer unmittelbar oberhalb des Einfahrtstores eingezogenen Balkenlage.
Der Spitzboden läuft ohne jegliche Unterteilung durch.
Das Obergeschoss wird zwar ebenfalls durch eine Längswand in zwei Schiffe geteilt, doch fehlt eine dem Erdgeschoss vergleichbare Zoneneinteilung. Vielmehr legen sich vier Räume U-förmig um den schmalen, leicht außermittig im östlichen Schiff angeordneten Flur. Der Flur enthält außerdem die Treppen zum Erdgeschoss und zum Dach. Der Anbau auf der Ostseite nimmt neben einem kleinen Vorraum den Abtritt auf.
Die Scheunentenne öffnet sich mittels eines zweiflügligen Tores in der Ostwand in ganzer Breite zum Hof. Sie reicht nicht über beide Vollgeschosse des Wohnteils, sondern nur bis zu einer unmittelbar oberhalb des Einfahrtstores eingezogenen Balkenlage.
Der Spitzboden läuft ohne jegliche Unterteilung durch.
Vorgefundener Zustand (z.B. Schäden, Vorzustand):
Trotz einiger Veränderungen in neuerer Zeit ist die Bausubstanz des Hauses noch weitgehend bauzeitlich erhalten. Die Grundrissdisposition des Obergeschosses ist noch unverändert aus der Zeit des späten 17. Jahrhunderts.
Bestand/Ausstattung:
keine Angaben
Konstruktionen
Konstruktionsdetail:
- Mischbau
- Holzbau mit Gebäudeteil aus Stein
- Holzgerüstbau
- Unterbaugerüst
- Dachform
- Satteldach
- Dachgerüst Grundsystem
- Sparrendach, q. geb. mit liegendem Stuhl
- Sparrendach, q. geb. mit stehendem Stuhl
Konstruktion/Material:
Das Haus wurde komplett als Fachwerkkonstruktion abgezimmert. Die Außenwände des Erdgeschosses wurden durch massive Wände ersetzt.
Es wird in seinen beiden Vollgeschossen durch einen Mittellängswand bzw. -unterzug gegliedert. An der Trennung der Scheunentenne zum Wohnteil läuft eine Querscheidewand durch beide Geschosse und setzt sich im Dach als liegender Binder fort. Der Dachstuhl stellt mit seiner Kombination aus liegenden Bindern im Dachraum und stehende Stuhlsäulen in den Giebelwänden eine zeittypische Konstruktion dar.
Es wird in seinen beiden Vollgeschossen durch einen Mittellängswand bzw. -unterzug gegliedert. An der Trennung der Scheunentenne zum Wohnteil läuft eine Querscheidewand durch beide Geschosse und setzt sich im Dach als liegender Binder fort. Der Dachstuhl stellt mit seiner Kombination aus liegenden Bindern im Dachraum und stehende Stuhlsäulen in den Giebelwänden eine zeittypische Konstruktion dar.


