Wohnhaus, ehem. Schulhaus
ID:
251310139095
/
Datum:
16.12.2009
Datenbestand: Bauforschung
Datenbestand: Bauforschung
Objektdaten
| Straße: | Lampertsgasse |
| Hausnummer: | 5 |
| Postleitzahl: | 74889 |
| Stadt-Teilort: | Sinsheim-Hilsbach |
|
|
|
| Regierungsbezirk: | Karlsruhe |
| Kreis: | Rhein-Neckar-Kreis (Landkreis) |
| Wohnplatzschlüssel: | 8226085015 |
| Flurstücknummer: | 234/1 |
| Historischer Straßenname: | keiner |
| Historische Gebäudenummer: | keine |
| Lage des Wohnplatzes: |
|
Kartenansicht (OpenStreetMaps)
Durch Ihre Cookie-Auswahl haben Sie die Kartenansicht deaktiviert, die eigentlich hier angezeigt werden würde. Wenn Sie die Kartenansicht nutzen möchten, passen Sie bitte Ihre Cookie-Einstellungen unter Impressum & Datenschutzerklärung an.
Wohnhaus (74889 Hilsbach, Mettengasse 16)
ehem. Wohnhaus, Lampertsgasse 6 (74889 Sinsheim-Hilsbach)
Ehem. Gasthaus „Zum Löwen“, Lampertsgasse 3 (74889 Sinsheim-Hilsbach)
ehem. Wohnhaus, Lampertsgasse 6 (74889 Sinsheim-Hilsbach)
Ehem. Gasthaus „Zum Löwen“, Lampertsgasse 3 (74889 Sinsheim-Hilsbach)
Bauphasen
Kurzbeschreibung der Bau-/Objektgeschichte bzw. Baugestaltungs- und Restaurierungsphasen:
Das Gebäude wurde 1813 (d) als reformiertes Schulhaus errichtet. Vermutlich wurde es ursprünglich als Fachwerkhaus errichtet. Im Erdgeschoss befand sich vermutlich die Lehrerwohnung. Im Obergeschoss befindet sich ein Raum, der vermutlich als Schulsaal diente. Nach Aufgabe der Schulnutzung im späten 19. oder frühen 20. Jahrhundert wurde der Schulsaal zunehmend unterteilt. Vermutlich zu diesem Zeitpunkt wurde das Gebäude größtenteils erneuert. Zuletzt enthielt das Haus zwei nicht Wohnungen.
1993 wurde das Gebäude zum Abbruch frei gegeben.
1. Bauphase:
(1813)
(1813)
Das Gebäude wurde 1813 (d) als reformiertes Schulhaus errichtet. Vermutlich wurde es ursprünglich als Fachwerkhaus errichtet. (d)(gk)
Betroffene Gebäudeteile:
keine
Bauwerkstyp:
- Wohnbauten
- Wohnhaus
- Anlagen für Bildung, Kunst und Wissenschaft
- Schule, Kindergarten
Konstruktionsdetail:
- Holzgerüstbau
- Geschossgerüst
2. Bauphase:
(1890 - 1910)
(1890 - 1910)
Nach der Aufgabe der Schulnutzung im späten 19. oder frühen 20. Jahrhundert wurde der Schulsaal zunehmend unterteilt. Vermutlich zu diesem Zeitpunkt wurde das Gebäude massiv erneuert. Zuletzt enthielt das Haus zwei nicht abgeschlossene Wohnungen. (gk)
Betroffene Gebäudeteile:
keine
Bauwerkstyp:
- Wohnbauten
- Wohnhaus
3. Bauphase:
(1993)
(1993)
1993 wurde das Gebäude zum Abbruch frei gegeben. (a)
Betroffene Gebäudeteile:
keine
Zugeordnete Dokumentationen
- Bauhistorische Abbruchdokumentation des Wohnhauses
Beschreibung
Umgebung, Lage:
Das Gebäude liegt in einer exponierten Lage direkt an der Kirchhofmauer.
Lagedetail:
- Siedlung
- Dorf
Bauwerkstyp:
- Wohnbauten
- Wohnhaus
Baukörper/Objektform (Kurzbeschreibung):
Das zweigeschossige Wohnhaus misst bei einer Länge von 9,4 m im Osten und 10,55 m im Westen ca. 8,7 m Breite. Es ist von Süden gegen die Außenseite der Kirchhofstützmauer gelehnt, die dessen beide Vollgeschossen überragen.
Innerer Aufbau/Grundriss/
Zonierung:
Zonierung:
Der Hauseingang führt vom Kirchhof aus (Nordosten) ins Erdgeschoss. Unterhalb des Kirchhofsniveaus liegt ein nach Osten, Süden und Westen ebenerdiges Untergeschoss, das Stall- und Kellerräume sowie eine mittlere Querdurchfahrt enthält.
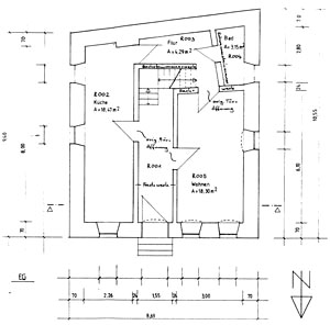
Das Erdgeschoss ist dreizonig gegliedert und in der Mitte befindet sich ein Längsflur mit einer Treppe ins Obergeschoss.
Das Obergeschoss ist zweizonig aufgeteilt. Die Zone im Osten ist zweiachsig, die im Westen dreiachsig gegliedert.
Das Erdgeschoss ist dreizonig gegliedert und in der Mitte befindet sich ein Längsflur mit einer Treppe ins Obergeschoss.
Das Obergeschoss ist zweizonig aufgeteilt. Die Zone im Osten ist zweiachsig, die im Westen dreiachsig gegliedert.
Vorgefundener Zustand (z.B. Schäden, Vorzustand):
Die Fenster wurden ursprünglich mit Werksteineinfassungen ausgestattet. An der Südseite des Gebäudes ist das einheitlich abgebundene Fachwerkgefüge mit Bruchsteinausmauerung des Giebelsdreiecks unverändert erhalten.
Im Inneren des Erdgeschosses gehören die beiden Seitenwände des Flures und die Südwand des Wohnraumes zum einheitlich abgebundenen Fachwerk, das aus der Bauzeit des Hauses stammen dürfte.
Die gemauerten Wände wurden erst im 20. Jahrhundert eingezogen.
Im Inneren des Erdgeschosses gehören die beiden Seitenwände des Flures und die Südwand des Wohnraumes zum einheitlich abgebundenen Fachwerk, das aus der Bauzeit des Hauses stammen dürfte.
Die gemauerten Wände wurden erst im 20. Jahrhundert eingezogen.
Bestand/Ausstattung:
keine Angaben
Konstruktionen
Konstruktionsdetail:
- Mischbau
- Steinbau mit Gebäudeteilen aus Holz
- Dachform
- Satteldach
- Dachgerüst Grundsystem
- Sparrendach, q. geb. mit liegendem Stuhl
Konstruktion/Material:
Das Gebäude wurde in Massivbauweise errichtet und mit einem Satteldach überdeckt.
An der Westseite springen die Obergeschosse über dem Untergeschoss leicht zurück und sind wie dieses ganz aus großen, z.T. grob behauenen Bruchsteinen aufgemauert.
Die Innenwände bestehen zum einen aus dünnen Fachwerkgefüge mit Bruchsteinausmauerung, zum anderen sind sie aus Backsteinen gemauert.
Das Dach wird von einem liegenden Stuhl mit zusätzlichem Mittellängsunterzug getragen.
An der Westseite springen die Obergeschosse über dem Untergeschoss leicht zurück und sind wie dieses ganz aus großen, z.T. grob behauenen Bruchsteinen aufgemauert.
Die Innenwände bestehen zum einen aus dünnen Fachwerkgefüge mit Bruchsteinausmauerung, zum anderen sind sie aus Backsteinen gemauert.
Das Dach wird von einem liegenden Stuhl mit zusätzlichem Mittellängsunterzug getragen.


