Datenbank Bauforschung/Restaurierung

Datenbank Bauforschung/Restaurierung

Fachwerkhaus

ID: 221219399228  /  Datum: 19.03.2007
Datenbestand: Bauforschung
Als PDF herunterladen:
Alle Inhalte dieser Seite: /

Objektdaten

Straße: Marktstraße
Hausnummer: 1-5
Postleitzahl: 72184
Stadt-Teilort: Eutingen im Gäu

Regierungsbezirk: Karlsruhe
Kreis: Freudenstadt (Landkreis)
Wohnplatzschlüssel: 8237027004
Flurstücknummer: keine
Historischer Straßenname: keiner
Historische Gebäudenummer: keine
Lage des Wohnplatzes: Lage des Wohnplatzes

Kartenansicht (OpenStreetMaps)

Durch Ihre Cookie-Auswahl haben Sie die Kartenansicht deaktiviert, die eigentlich hier angezeigt werden würde. Wenn Sie die Kartenansicht nutzen möchten, passen Sie bitte Ihre Cookie-Einstellungen unter Impressum & Datenschutzerklärung an.

Objektbeziehungen

keine

Umbauzuordnung

keine

Weitere Objekte an diesem Wohnplatz

Wohnhaus mit Scheune (72184 Eutingen im Gäu, Bahnhofstraße 7)
Wohnstallhaus, Hauptstraße 4 (72184 Eutingen im Gäu)
Wohnhaus mit Scheune (72184 Eutingen im Gäu, Schillerstraße 22)
Wohnhaus (abgegangen) (72184 Eutingen im Gäu, Schillerstraße 23)
Wohnhaus (abgegangen) (72184 Eutingen, Bergstraße 7)

Bauphasen

Kurzbeschreibung der Bau-/Objektgeschichte bzw. Baugestaltungs- und Restaurierungsphasen:

Die dendrochronologisch ausgewerteten Bohrproben ergaben eine Fällung im Winter 1684/85. Da die Stuhlrähme durch beide Haushälften gehen, kann das gleiche Baujahr für beide Hausteile angenommen werden. Das Datum der später errichteten Scheune konnte nicht bestimmt werden. Zu Beginn des 20. Jahrhunderts (1908/09) wurde das Dachgeschoss aufgestockt und als Wohnraum ausgebaut. Ursprünglich war das Gebäude dreizonig und nicht in zwei Teile getrennt. Im Erdgeschoss befanden vmtl. die Stallungen. Eine Inschrift mit dem Datum 1846 zeigt, dass die ursprünglich aus Fachwerk bestehenden Umfassungswände in dieser Zeit durch massives Mauerwerk ersetzt wurden.


1. Bauphase:
(1685)
Errichtung des Gebäudes, zu dieser Zeit noch nicht geteilt (d, Winterfällung 1684/85).
Betroffene Gebäudeteile:
keine

2. Bauphase:
(1846)
Die Umfassungsmauer wird bis spätestens 1846 (i) durch eine massive Bruchsteinwand ersetzt.
Betroffene Gebäudeteile:
keine

3. Bauphase:
(1908 - 1909)
Aufstockung des Dachgeschosses und Umbau zur Wohnung (a).
Betroffene Gebäudeteile:
keine
Bauwerkstyp:
  • Wohnbauten
    • Wohnhaus

Besitzer:in

keine Angaben

Fotos

Eutingen im Gäu, Marktstraße 1-5, Ansicht Marktstraße / Fachwerkhaus in 72184 Eutingen im Gäu
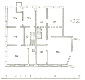
Eutingen im Gäu, Marktstraße 1-5, Grundriss Obergeschoss / Fachwerkhaus in 72184 Eutingen im Gäu

Zugeordnete Dokumentationen

  • Bauhistorische Abbruchdokumentation

Beschreibung

Umgebung, Lage:
Das Gebäude steht an sehr prominenter Lage in der Ortsmitte, an der wichtigsten Straßenkreuzung des Ortes. In mäßig nach Nordosten ansteigendem Gelände nehmen die Bauten den südöstlichen Winkel zwischen Marktstraße und Hauptstraße ein.
Lagedetail:
  • Siedlung
    • Dorf
Bauwerkstyp:
  • Wohnbauten
    • Wohnhaus
  • Ländl./ landwirtschaftl. Bauten/ städtische Nebengeb.
    • Bauernhaus
Baukörper/Objektform (Kurzbeschreibung):
Der stattliche Gebäudekomplex besteht aus drei Teilen: zwei unter einem Dach und mit einheitlicher Fassadengestaltung zusammengefassten Wohnhäusern und einer sehr geräumigen Scheune, die in neuerer Zeit teilweise in das angrenzende Wohnhaus einbezogen wurde. Die Wohnhäuser besitzen über einem Sockelgeschoss zwei weitere Vollgeschosse und ein dreigeschossiges Satteldach.
Innerer Aufbau/Grundriss/
Zonierung:
Beide Gebäudeteile haben einen separaten Eingang. Im Erdgeschoss waren entlang des mittig liegenden Flurs die Stallräume angegliedert. Im südlichen Teil ist jetzt ein Laden angeordnet. Im Obergeschoss gliedern sich die Räume um das mittige Treppenhaus. Die Küchen sind in beiden Gebäudeteilen im östlichen Bereich angegliedert. Das Dachgeschoss wurde erst später als Wohngeschoss ausgebaut. Der Grundriss ist entsprechend dem 1. Obergeschoss strukturiert. In den Querwänden kann die Lage der Stuhlrähme abgelesen werden.
Vorgefundener Zustand (z.B. Schäden, Vorzustand):
abgebrochen?
Bestand/Ausstattung:
keine Angaben

Konstruktionen

Konstruktionsdetail:
  • Mischbau
    • Außenwand aus Stein
  • Steinbau Mauerwerk
    • Bruchstein
  • Dachform
    • Satteldach
Konstruktion/Material:
Die Umfassungswände der beiden unteren Wohngeschosse sind massiv gemauert und glatt verputzt. Der Oberbau und die Scheune wurden in Holzgerüstbauweise errichtet und sind ebenfalls verputzt. Die inneren Zwischenwände sind, bis auf einige im Erdgeschoss, ebenfalls in Fachwerk konstruiert.

Quick-Response-Code

qrCode