Kloster Bebenhausen (ehem. Holz- und Chaisenremise)

Datenbank Bauforschung/Restaurierung

Datenbank Bauforschung/Restaurierung

Bauernhaus

ID: 172062704618  /  Datum: 12.05.2023
Datenbestand: Bauforschung
Als PDF herunterladen:
Alle Inhalte dieser Seite: /

Objektdaten

Straße: Alpirsbacher Straße
Hausnummer: 29
Postleitzahl: 78733
Stadt-Teilort: Aichhalden

Regierungsbezirk: Freiburg
Kreis: Rottweil (Landkreis)
Wohnplatzschlüssel: 8325001020
Flurstücknummer: keine
Historischer Straßenname: keiner
Historische Gebäudenummer: keine
Lage des Wohnplatzes: Lage des Wohnplatzes
Geo-Koordinaten: 48,3063° nördliche Breite, 8,4226° östliche Länge

Kartenansicht (OpenStreetMaps)

Durch Ihre Cookie-Auswahl haben Sie die Kartenansicht deaktiviert, die eigentlich hier angezeigt werden würde. Wenn Sie die Kartenansicht nutzen möchten, passen Sie bitte Ihre Cookie-Einstellungen unter Impressum & Datenschutzerklärung an.

Objektbeziehungen

keine

Umbauzuordnung

keine

Weitere Objekte an diesem Wohnplatz

Bauphasen

Kurzbeschreibung der Bau-/Objektgeschichte bzw. Baugestaltungs- und Restaurierungsphasen:

Das Holzgerüst wurde 1654 aufgerichtet. Der eingebaute Gewölbekeller ist inschriftlich auf 1756 (i) datiert. Später kamen zahlreiche Anbauten und Veränderungen sowie der Einbau der Schmiede hinzu.


1. Bauphase:
(1653 - 1654)
Aufrichtung des Holzgerüstes
Betroffene Gebäudeteile:
Betroffene Gebäudeteile
  • Erdgeschoss
  • Obergeschoss(e)
  • Dachgeschoss(e)
Lagedetail:
  • Siedlung
    • Dorf
Bauwerkstyp:
  • Ländl./ landwirtschaftl. Bauten/ städtische Nebengeb.
    • Eindachhof

2. Bauphase:
(1756)
Einbau eines Gewölbekellers.
Betroffene Gebäudeteile:
Betroffene Gebäudeteile
  • Untergeschoss(e)
Lagedetail:
  • Siedlung
    • Dorf
Bauwerkstyp:
  • Ländl./ landwirtschaftl. Bauten/ städtische Nebengeb.
    • Eindachhof

Besitzer:in

keine Angaben

Fotos

Abbildungsnachweis
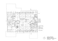
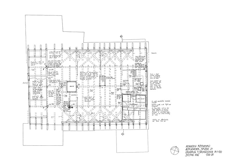
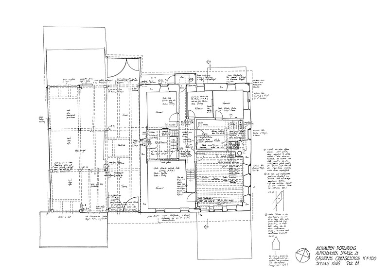
Befundplan EG / Bauernhaus in 78733 Aichhalden, Rötenberg (12.1989 - S. King)
Abbildungsnachweis
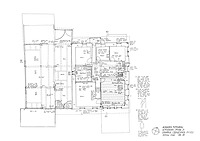
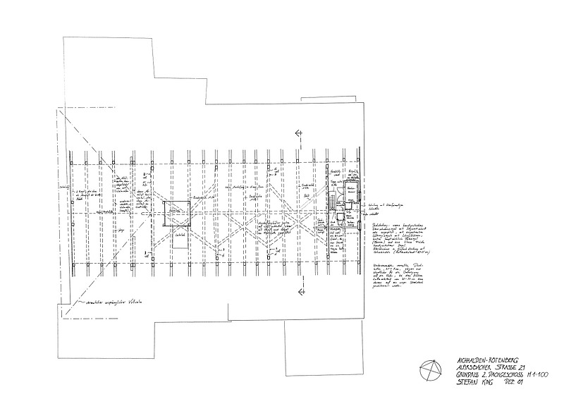
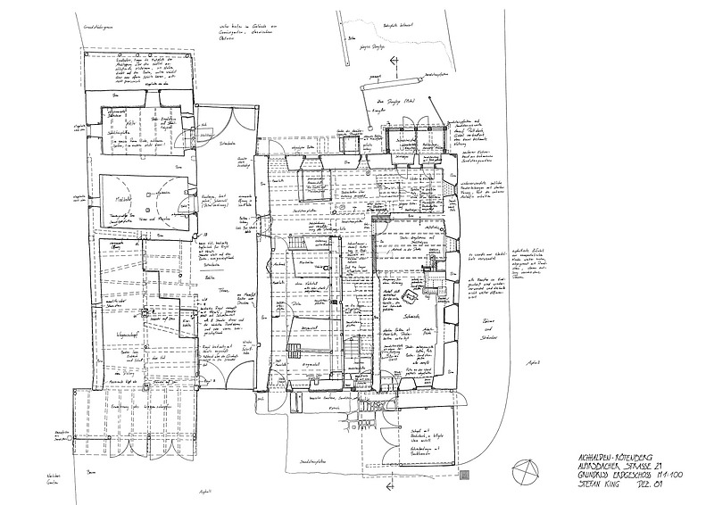
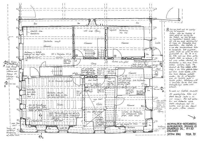
Befundplan OG / Bauernhaus in 78733 Aichhalden, Rötenberg (12.1989 - S. King)
Abbildungsnachweis
Befundplan DG / Bauernhaus in 78733 Aichhalden, Rötenberg (12.1989 - S. King)
Abbildungsnachweis
Befungplan 2. DG / Bauernhaus in 78733 Aichhalden, Rötenberg (12.1989 - S. King)
Abbildungsnachweis
Befundplan, Querschnitt / Bauernhaus in 78733 Aichhalden, Rötenberg (12.1989 - S. King)
Abbildungsnachweis
Befundplan, Nachunterschung OG / Bauernhaus in 78733 Aichhalden, Rötenberg (02.1990 - S. King)
Abbildungsnachweis
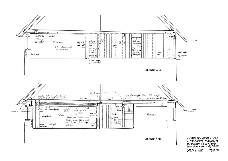
Nachuntersuchung, Querschnitt A-A und B-B, nur durch das OG / Bauernhaus in 78733 Aichhalden, Rötenberg (02.1990 - S. King)
Abbildungsnachweis
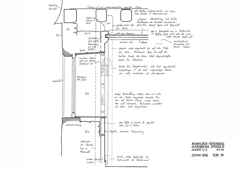
Nachuntersuchung, Querschnitt C-C / Bauernhaus in 78733 Aichhalden, Rötenberg (02.1990 - S. King)
Abbildungsnachweis
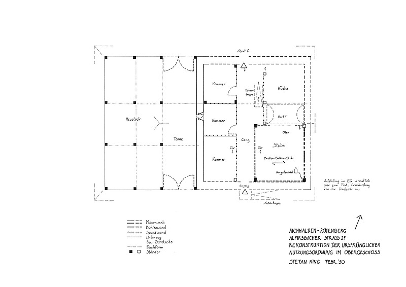
Nachuntersuchung, Rekonstruktion der ursprünglichen Nutzungsordnung im Obergeschoss / Bauernhaus in 78733 Aichhalden, Rötenberg (02.1990 - S. King)

Zugeordnete Dokumentationen

  • Bauhistorische Dokumentation

Beschreibung

Umgebung, Lage:
Das traufständige Gebäude befand sich im Ortskern von Rötenberg an der nördlichen, rechtwinklig abknickenden Ausfallstraße nach Alpirsbach und in der Nähe der Kirche.
Lagedetail:
  • Siedlung
    • Dorf
Bauwerkstyp:
  • Ländl./ landwirtschaftl. Bauten/ städtische Nebengeb.
    • Eindachhof
Baukörper/Objektform (Kurzbeschreibung):
Charakeristisches, zweigeschossiges Einhaus bestehend aus Wohn- und Ökonomieteil mit mehreren Anbauten an beiden Traufseiten.
Innerer Aufbau/Grundriss/
Zonierung:
Im Erdgeschoss ein dreizoniger Grundriss mit Stall, Tenne und Schopf. In den Stall wurde später eine Schmiede eingebaut, im Schopfbereich ein Gewölbekeller (1756 (i)). Weitere Anbauten wie ein rückwärtiger Schweinestall oder ein Schopf an der Vorderseite kamen hinzu.
Das Wohngeschoss ist in drei Zonen aufgebaut, ursprünglich bestehend aus giebelseitiger Stube und Küche, einem Flur sowie eine Kammerzone. Daran schließen Tenne und Heulager an. Später wurde an der Rücktraufe ein Teil der Küche abgetrennt und in zwei Kammern unterteilt. Die Küche rückte näher zur Stube.
Der Zugang erfolgte ursprünglich über eine Außentreppe ins Obergeschoss.
Vorgefundener Zustand (z.B. Schäden, Vorzustand):
keine Angaben
Bestand/Ausstattung:
Nachträglich ausgestemmte Nische im Eckständer der Stube für einen Herrgottswinkel, bauzeitlich oder kurz danach (?). Später wurde er verschlossen. Rötenbach ist bereits seit der 1. Hälfte des 16. Jahrhunderts protestantisch.

Konstruktionen

Konstruktionsdetail:
  • Steinbau Mauerwerk
    • Bruchstein
    • Werkstein
  • Decken
    • Balken-Bretter-Decke
  • Dachform
    • Satteldach mit einseitigem Vollwalm
  • Holzgerüstbau
    • allgemein
Konstruktion/Material:
Das Gebäude besteht aus einem annähernd quadratischen, zweigeschossigen Mauergeviert, in dem sich Stall und Wohnung befinden, daran anschließend eine zweigeschosshohe Tenne und dahinter ein in sich ausgesteiftes Gerüst aus zweigeschosshohen Ständern.
Das Mauerwerk besteht aus Bruchstein, ergänzt durch Werksteine aus Sandstein an Fenstern und Gebäudeecken.
Die Stube verfügt über eine Bretter-Balken-Decke. In der Küche trennt ein Unterzug den ehemaligen wohl offenen Kamin vom übrigen Raum. Die Bretterwände der Kammern sind vertikal in die genuteten Balken eingebaut. Die mittlere Kammer wird durch ein kleines Fensterchen zur Tenne belichtet.
Das Gerüst des Ökonomieteils besteht aus zwei Bünden mit zweigeschosshohen Ständern und einer eingeschossigen, durch Kopf- und Fußbändern ausgesteiften Giebelwand auf Bruchsteinsockel. Vier Unterzüge verbinden das Gerüst mit dem Wohnteil. Die Tenne war durch eingenutete Bretterwände vom übrigen Bereich abgetrennt.
Das Dachwerk besteht aus einem liegenden Stuhl aus drei Bünden und einer mittleren Ständerreihe im 1. Dachgeschoss sowie vier liegenden Bünden im 2. Dachgeschoss. Im 1. Dachgeschoss sorgen Spannriegel und Kopfstreben für eine Queraussteifung. Nach Osten bestand ein Giebeldreieck, nach Westen ein Vollwalm.

Quick-Response-Code

qrCode