Rathaus
ID:
131213369379
/
Datum:
28.09.2006
Datenbestand: Bauforschung
Datenbestand: Bauforschung
Objektdaten
| Straße: | Marktplatz |
| Hausnummer: | 1 |
| Postleitzahl: | 72280 |
| Stadt-Teilort: | Dornstetten |
|
|
|
| Regierungsbezirk: | Karlsruhe |
| Kreis: | Freudenstadt (Landkreis) |
| Wohnplatzschlüssel: | 8237019003 |
| Flurstücknummer: | keine |
| Historischer Straßenname: | keiner |
| Historische Gebäudenummer: | keine |
| Lage des Wohnplatzes: |
|
Kartenansicht (OpenStreetMaps)
Durch Ihre Cookie-Auswahl haben Sie die Kartenansicht deaktiviert, die eigentlich hier angezeigt werden würde. Wenn Sie die Kartenansicht nutzen möchten, passen Sie bitte Ihre Cookie-Einstellungen unter Impressum & Datenschutzerklärung an.
Wohnhaus, Marktplatz 7 (72280 Dornstetten)
ehem. Gasthof Ochsen (72280 Dornstetten, Martkplatz 2)
Zehntscheuer (72280 Dornstetten, Zehntgasse 11)
Ehem. Fruchtkasten (72280 Dornstetten, Zehntgasse 7)
ehem. Gasthof Ochsen (72280 Dornstetten, Martkplatz 2)
Zehntscheuer (72280 Dornstetten, Zehntgasse 11)
Ehem. Fruchtkasten (72280 Dornstetten, Zehntgasse 7)
Bauphasen
Kurzbeschreibung der Bau-/Objektgeschichte bzw. Baugestaltungs- und Restaurierungsphasen:
Erste urkundliche Erwähnung eines Rathauses im Lagerbuch war 1521. Das Gebäude wurde an dieser Stelle einmal 1552 wiederaufgebaut. Nach dem Stadtbrand 1672 wurde das heutige Rathaus 1682/83 errichtet. Die im 18. Jahrhundert veränderte und im Zeitgeist des Barocks verputzte Fachwerkfassade wurde 1912 wieder freigelegt. Bis heute ist das Gebäude noch als Rathaus genutzt.
1. Bauphase:
(1551)
(1551)
Bei einem Brand wurde das Vor- Vorgängergebäude zerstört (a)
Betroffene Gebäudeteile:
keine
2. Bauphase:
(1552)
(1552)
Wiederaufbau des Gebäudes (a)
Betroffene Gebäudeteile:
keine
3. Bauphase:
(1672)
(1672)
Beim großen Stadbrand wurde das Vorgängergebäude zerstört. (a)
Betroffene Gebäudeteile:
keine
4. Bauphase:
(1682 - 1683)
(1682 - 1683)
Bau des heutigen Rathauses in Sichtfachwerk. (a)
Betroffene Gebäudeteile:
keine
5. Bauphase:
(1700 - 1800)
(1700 - 1800)
Veränderung der Fachwerkwand zum Markplatz mit dem Ziel einer gleichmäßigen Befensterung. Gleichzeitig wurde im Zeitgeist der Barockisierung die Fassade überputzt. (a)
Betroffene Gebäudeteile:
keine
6. Bauphase:
(1912)
(1912)
Freilegung des Fachwerks. (a)
Betroffene Gebäudeteile:
keine
7. Bauphase:
(1934)
(1934)
Der stark beschädigte Straßengiebel wurde entsprechend dem Bestand rekonstruiert. (a, Angabe im Heimatbuch)
Betroffene Gebäudeteile:
keine
Zugeordnete Dokumentationen
- Bauaufnahme und baugeschichtliche Untersuchung
Beschreibung
Umgebung, Lage:
Das Gebäude steht giebelseitig am Marktplatz.
Lagedetail:
- Siedlung
- Stadt
Bauwerkstyp:
- Öffentliche Bauten/ herrschaftliche Einrichtungen
- Rathaus
Baukörper/Objektform (Kurzbeschreibung):
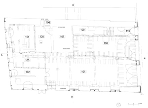
Das zweigeschossige Rathaus steht auf einer Grundfläche von 13.70 m x 25.20 m und hat ein dreigeschossiges Dachwerk.
Innerer Aufbau/Grundriss/
Zonierung:
Zonierung:
Das Erdgeschoss ist eine zweischiffige Anlage. Die Lasten der oberen Geschosse Ruhen auf einer mittigen Stützenreihe. Die Raumaufteilung könnte aus einer Umbauphase stammen. Die Räume des 1. Obergeschosses sind U-förmig um die Erschließungszone angeordnet. Im 1. Dachgeschoss gliedert und erschließt ein zentraler Flur das dreischiffige Stockwerk.
Vorgefundener Zustand (z.B. Schäden, Vorzustand):
Die oberen Dachgeschosse sind nur teilweise ausgebaut. Es ist dort noch die bauzeitliche Konstruktion erhalten.
Bestand/Ausstattung:
Die östliche Fachwerkwand (zum Marktplatz) ist als Schmuckfachwerk abgezimmert.
Konstruktionen
Konstruktionsdetail:
- Gewölbe
- Tonnengewölbe
- Mischbau
- Außenwand aus Stein
- Wandfüllung/-verschalung/-verkleidung
- Flechtwerk
- Dachgerüst Grundsystem
- Sparrendach, q. geb. mit liegendem Stuhl
- Dachform
- Satteldach mit Schopfwalm (Krüppelwalm)
Konstruktion/Material:
Das Erdgeschoss ist außen in massiver Bauweise ausgeführt. Es ruht auf zwei einzelnen gewölbten Kellern. Das 1. Obergeschoss ist zur Hälfte massiv, die andere Hälfte als Fachwerkkonstruktion ausgeführt.


