Ehem. Wohnstallhaus
Datenbestand: Bauforschung
Objektdaten
| Straße: | Dornberger Straße |
| Hausnummer: | 4/6 |
| Postleitzahl: | 74736 |
| Stadt-Teilort: | Hardheim-Dornberg |
|
|
|
| Regierungsbezirk: | Karlsruhe |
| Kreis: | Neckar-Odenwald-Kreis (Landkreis) |
| Wohnplatzschlüssel: | 8225032004 |
| Flurstücknummer: | keine |
| Historischer Straßenname: | keiner |
| Historische Gebäudenummer: | keine |
| Lage des Wohnplatzes: |
|
Kartenansicht (OpenStreetMaps)
Bauphasen
Als Baujahr des Hauses kann aufgrund der dendrochronologischen Untersuchung mit großer Sicherheit 1721 angegeben werden.
Für die Veränderungen des 19. Jahrhunderts liegen einige teils am Bau gewonnene, teils archivarische Daten vor. 1840, allenfalls kurz darauf erfolgte nach der dendrochronologischen Untersuchung die Verlängerung des Hauses nach Norden. Schon kurz vorher, nämlich 1837, war - der Inschrift in der Kellertür zufolge - die südliche Haushälfte nach Westen erweitert worden. Eine Teilung des Gebäudes in zwei Hälften kann für diese Zeit angenommen werden.
Nach 1945 wurde die Westwand im unteren Hauptgeschoss des nördlichen Hausteils ersetzt. Zusätzlich wurde eine Veränderung der Raumaufteilung in der nördlichen Zone vorgenommen.
(1721)
- Dachgerüst Grundsystem
- Sparrendach, q. geb. mit stehendem Stuhl
- Holzgerüstbau
- Unterbaugerüst
(1837)
(1840)
(1945 - 1950)
Zugeordnete Dokumentationen
- Bauhistorisches Gutachten über das Doppelwohnhaus
Beschreibung
- Siedlung
- Dorf
- Ländl./ landwirtschaftl. Bauten/ städtische Nebengeb.
- Bauernhaus
Zonierung:
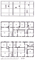
Im nördlichen Hausteil weist nur das obere Geschoss noch eine halbwegs regelmäßige Grundrissgliederung auf. Im Bereich des Altbaus begleiten je zwei Räume einen mittigen Längsflur, der sich im Bereich der Verlängerung etwas schmaler und geringfügig nach Westen verschoben fortsetzt. Hier befinden sich bei streng zweizoniger Aufteilung drei weitere Räume und das Treppenhaus. Die davon stark abweichende Raumordnung im unteren Geschoss ist im Bereich der Verlängerung erst das Ergebnis eines Umbaus kurz nach dem 2. Weltkrieg. Vorher lief die Querscheidewand zwischen den beiden Zonen bis zur westlichen Außenwand durch und trennte den Treppenflur von 4 Räumen in der nördlichen Zone.
Konstruktionen
- Mischbau
- Obergeschoss(e) aus Holz
- Gewölbe
- Tonnengewölbe
- Holzgerüstbau
- Unterbaugerüst
- Dachform
- Satteldach
- Dachgerüst Grundsystem
- Sparrendach, q. geb. mit liegendem Stuhl


