Fachwerkhaus
ID:
341219389287
/
Datum:
07.03.2007
Datenbestand: Bauforschung
Datenbestand: Bauforschung
Objektdaten
| Straße: | Kirchplatz |
| Hausnummer: | 10/1 |
| Postleitzahl: | 75438 |
| Stadt-Teilort: | Knittlingen |
|
|
|
| Regierungsbezirk: | Karlsruhe |
| Kreis: | Enzkreis (Landkreis) |
| Wohnplatzschlüssel: | 8236033005 |
| Flurstücknummer: | keine |
| Historischer Straßenname: | keiner |
| Historische Gebäudenummer: | keine |
| Lage des Wohnplatzes: |
|
Kartenansicht (OpenStreetMaps)
Durch Ihre Cookie-Auswahl haben Sie die Kartenansicht deaktiviert, die eigentlich hier angezeigt werden würde. Wenn Sie die Kartenansicht nutzen möchten, passen Sie bitte Ihre Cookie-Einstellungen unter Impressum & Datenschutzerklärung an.
Steinhaus mit Scheune des Pfleghof (75438 Knittlingen, Pfleghof 2)
Bauphasen
Kurzbeschreibung der Bau-/Objektgeschichte bzw. Baugestaltungs- und Restaurierungsphasen:
Das Kellergewölbe und Teile der östlichen Traufwand entstammen aus der Zeit von vor 1692. Laut dem Einschätzungsverzeichnis von 1924 wurde das Gebäude nach seiner Zerstörung im Jahre 1719 wieder neu errichtet.
Die inschriftliche Datierung am Kellerportal auf das Jahr 1798 bezieht sich auf eine Reparaturmaßnahme an der Nordostecke. Anhand der Ausstattungsteile ist für die Jahre um 1900 eine vollständige Innensanierung belegt. 1975 wurden die Scheunen und Schweineställe zu Haus 10/1 abgebrochen. Um 1980 wurden Fenster und Türen sowie alle Raumoberflächen erneuert und verkleidet.
1. Bauphase:
(1692)
(1692)
Bau des Kellers mit Gewölbe (a).
Betroffene Gebäudeteile:
keine
2. Bauphase:
(1719)
(1719)
Das zerstörte Gebäude wurde neu aufgerichtet (a).
Betroffene Gebäudeteile:
keine
3. Bauphase:
(1798)
(1798)
Umbau des Kellergeschosses (i).
Betroffene Gebäudeteile:
keine
4. Bauphase:
(1890 - 1910)
(1890 - 1910)
Vollständige Innensanierung des Gebäudes (s).
Betroffene Gebäudeteile:
keine
5. Bauphase:
(1975)
(1975)
Abriss der Scheune und Schweineställe (a).
Betroffene Gebäudeteile:
keine
6. Bauphase:
(1980)
(1980)
Erneuerung der Fenster, Türen sowie aller Raumoberflächen (a).
Betroffene Gebäudeteile:
keine
Zugeordnete Dokumentationen
- Bauaufnahme und bauhistorische Untersuchung
Beschreibung
Umgebung, Lage:
keine Angaben
Lagedetail:
- Siedlung
- Dorf
Bauwerkstyp:
- Wohnbauten
- Wohnhaus
Baukörper/Objektform (Kurzbeschreibung):
Das zweigeschossige Fachwerkhaus steht auf einem massiven, tonnengewölbtem Keller. Der rechteckige Grundriss ist ca. 8m auf 14m groß. Das Satteldach ist als vierfach stehender Dachstuhl ausgebildet.
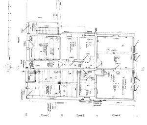
Innerer Aufbau/Grundriss/
Zonierung:
Zonierung:
Der ursprüngliche Grundrisszuschnitt mit seinen Gebäudezugängen an der westlichen Traufseite ist trotz nachträglicher Ein- und Umbauten noch gut ablesbar. In der Grundkonzeption handelt es sich um ein Mittelflurhaus, dessen mittliere Zone nochmals unterteilt wurde. Es entstehen dadurch jeweils zwei gespiegelte Wohnungen mit je vier Räumen. Im Dachgeschoss wurde diese Aufteilung weitergeführt.
Vorgefundener Zustand (z.B. Schäden, Vorzustand):
Das Gebäude wurde von Zeit zu Zeit nur sehr notdürftig repariert. Es wurden eher Notabstützungen der Kellerräume saniert wie die Ursache hierfür. Auch das Dachwerk wurde nur provisorisch repariert.
Bestand/Ausstattung:
keine Angaben
Konstruktionen
Konstruktionsdetail:
- Mischbau
- Obergeschoss(e) aus Holz
- Gewölbe
- Tonnengewölbe
- Dachform
- Satteldach, einhüftig/Frackdach
- Dachgerüst Grundsystem
- Sparrendach, q. geb. mit liegendem Stuhl
Konstruktion/Material:
Der Kellerraum wurde aus gelbem Bruchstein errichtet. Die darüberliegenden zwei Vollgeschosse sowie der Dachstuhl sind Fachwerkgeschosse in Nadelholz.


