Altes Rentamt
Datenbestand: Bauforschung
Objektdaten
| Straße: | Eichwaldstraße |
| Hausnummer: | 36 |
| Postleitzahl: | 74889 |
| Stadt-Teilort: | Sinsheim-Ehrstädt |
|
|
|
| Regierungsbezirk: | Karlsruhe |
| Kreis: | Rhein-Neckar-Kreis (Landkreis) |
| Wohnplatzschlüssel: | 8226085007 |
| Flurstücknummer: | 133 |
| Historischer Straßenname: | keiner |
| Historische Gebäudenummer: | keine |
| Lage des Wohnplatzes: |
|
Kartenansicht (OpenStreetMaps)
Umbauzuordnung
Bauphasen
Im Jahr 1587 wurde das Rentamt erstmals aktenkundig erwähnt. Das Gebäude jedoch entstammt vermutlich dem Spätbarock und wird auf die 2. Hälfte des 18. Jahrhunderts datiert.1850 wird wegen Baufälligkeit des Schulhauses der Unterricht in das Alte Rentamtgebäude verlegt. Seit 1889 befand es sich im Besitz der Familie Lautermilch, die das Anwesen landwirtschaftlich nutzte.
In der Zeit von 1914 bis 1918 wurden im ehemaligen Rentamt französische Kriegsgefangene festgehalten, worauf die Fenstergitter im Erdgeschoss aus dieser Zeit bis heute verweisen.
Im Jahr 1960 wurden neue Fenster im Erd- und Obergeschoss eingebaut und die Scheune zum Teil abgerissen und wiederaufgebaut. Seit 1990 ist das Alte Rentamt unbewohnt.
1995 zerstörte starker Hagel einen Großteil der Ziegel und Fensterscheiben. Ferner nahm die Ausstattung durch eindringendes Regenwasser große Schaden.
Am 24. 06.1996 wurde dem Abbruch des ehemaligen Rentamtes zugestimmt.
(1750 - 1790)
- Öffentliche Bauten/ herrschaftliche Einrichtungen
- Amtsgebäude
(1850 - 1889)
- Anlagen für Bildung, Kunst und Wissenschaft
- Schule, Kindergarten
(1889 - 1996)
- Wohnbauten
- Wohnhaus
(1914 - 1918)
- Öffentliche Bauten/ herrschaftliche Einrichtungen
- Gefängnis
(1960)
(1990 - 1996)
Am 24. 06.1996 wurde dem Abbruch des ehemaligen Rentamtes zugestimmt. (a)
Zugeordnete Dokumentationen
- Bauhistorische Voruntersuchung
Beschreibung
- Siedlung
- Dorf
- Öffentliche Bauten/ herrschaftliche Einrichtungen
- Amtsgebäude
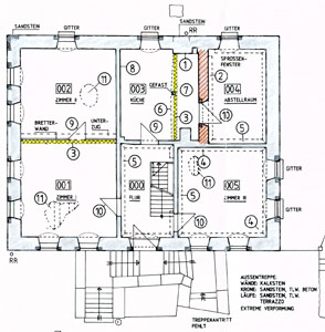
Zonierung:
Das ruinöse Kranzgesims weist ein Karniesprofil auf.
Die Raumoberflächen bestehen aus Holzdielen, verputzten Wänden mit Kalkanstrichen und Rollmustern sowie aus Lehmdecken mit Stuckprofilen resp. Stuckvoluten. In einigen Räumen finden sich Brüstungspaneele mit Füllung resp. Sockelbretter.
Konstruktionen
- Mischbau
- Obergeschoss(e) aus Holz
- Dachgerüst Grundsystem
- Balkendach mit Rofen und stehendem Stuhl
- Wandfüllung/-verschalung/-verkleidung
- Bruchstein/Wacken
- Lambris/Täfer
- Decken
- Lehmwickeldecke
- Detail (Ausstattung)
- bemerkenswerte Fenster
- bemerkenswerte Türen
- bemerkenswerte Wand-/Deckengestaltung
- Dachform
- Satteldach mit Schopfwalm (Krüppelwalm)


