Villa Götte
Datenbestand: Bauforschung
Objektdaten
| Straße: | Erwin-Rohde-Straße |
| Hausnummer: | 4 |
| Postleitzahl: | 69120 |
| Stadt-Teilort: | Heidelberg-Neuenheim |
|
|
|
| Regierungsbezirk: | Karlsruhe |
| Kreis: | Heidelberg (Stadtkreis) |
| Wohnplatzschlüssel: | 8221000018 |
| Flurstücknummer: | 5664/8 |
| Historischer Straßenname: | keiner |
| Historische Gebäudenummer: | keine |
| Lage des Wohnplatzes: |
|
Kartenansicht (OpenStreetMaps)
Gasthaus „Alte Krone“ (69120 Heidelberg-Neuenheim, Brückenkopfstraße 1)
ehem. Privatschule, Handschuhsheimer Landstraße 9 (69121 Heidelberg-Neuenheim)
Mönchhof (69120 Heidelberg-Neuenheim, Mönchhofstraße 3)
Karl-Theodor-Brücke, Alte Brücke (Heidelberg-Neuenheim, Neuenheimer Landstraße)
Bauphasen
Villa Götte wurde um 1885 in der Klosterstraße, später Erwin-Rohde-Straße als freistehende Villa mit Garten errichtet. Architekt war vermutlich Georg Busch, der auch für die nebenstehende Villa Rohde verantwortlich war. Wohl anlässlich eines Besitzerwechsels wurde das Gebäude 1906 in Auftrag von Kapitän Adolf Götte erweitert und aufwendig modernisiert. Die Entwürfe dazu stammen vom Anton Dertinger. Anstelle des niedrigeren Gebäudeteils von nur einer Fensterachse Breite, der eine schmale Treppe mit Abort enthielt, plante Dertinger einen zweiachsigen Risalit, der in der Beletage ein repräsentatives Vestibültreppenhaus und einen Salon sowie im Obergeschoss ein Herrenzimmer aufnahm. Das ursprüngliche Konzept wurde in Hinblick auf Fensterformen und Bauschmuck weitergeführt, so dass sich der neue „Salonrisalit“ harmonisch ins Gesamtbild einfügte.
(1885)
- Wohnbauten
- Wohn- und Geschäftshaus
(1906)
Zugeordnete Dokumentationen
- Bestandsdokumentation
Beschreibung
- Siedlung
- Stadt
- Wohnbauten
- Wohn- und Geschäftshaus
Zonierung:
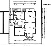
Die Nordzone ist in allen Geschossen dreiachsig gegliedert. In der Ostachse (Gartenseite) befinden sich zwei Räume, nur im EG ist dem Raum nach Norden in zwei Räume, die eine kleine Küche und Toilette beherbergen, geteilt. Im OG ist darüber ein Bad untergebracht. Der darüber gelegene Abortraum im DG fällt klein aus. In der Mittelachse erstreckt sich über alle Geschosse das Vestibültreppenhaus, das alle Räume erschließt. In der Westachse (Straßenseite) befindet sich ein Zimmer, das im EG und 1. OG mit dem repräsentativen Zimmer nach Süden erschlossen ist. Die Villa wird über einen Erschließungstrakt im Norden erschlossen. Im Osten (Gartenseite) führt ein Treppenabgang in den UG und über eine Steintreppe erschließt man den Balkonerker.
Konstruktionen
- Steinbau Mauerwerk
- allgemein
- Dachform
- Mansardwalmdach
- Satteldach mit beidseitigem Vollwalm
- Detail (Dach)
- Dachüberstand
- Detail (Ausstattung)
- bemerkenswerte Wand-/Deckengestaltung
- besondere Bodenbeläge


