Bauernhaus aus Aichelau (Hofanlage Aichelau, Hauptbau)
Datenbestand: Bauforschung
Objektdaten
| Straße: | Hayingerstraße |
| Hausnummer: | 3 |
| Postleitzahl: | 72539 |
| Stadt-Teilort: | Aichelau |
|
|
|
| Regierungsbezirk: | Tübingen |
| Kreis: | Reutlingen (Landkreis) |
| Wohnplatzschlüssel: | 8415058001 |
| Flurstücknummer: | keine |
| Historischer Straßenname: | keiner |
| Historische Gebäudenummer: | keine |
| Lage des Wohnplatzes: |
|
Kartenansicht (OpenStreetMaps)
Objektbeziehungen
| Ist Gebäudeteil von: | |
| 1. Gebäudeteil: | Freilichtmuseum Beuren, In den Herbstwiesen |
|
|
|
| Besteht aus folgenden Gebäudeteilen: | |
| 1. Beinhaltet Bauteil: | Ausgeding aus Aichelau (Hofanlage Aichelau), Hayingerstraße 3 |
| 2. Beinhaltet Bauteil: | Annexbauten am Haupthaus (Hofanlage Aichelau), Hayingerstraße 3 |
Annexbauten am Haupthaus (Hofanlage Aichelau), Hayingerstraße 3 (72539 Aichelau)
Bauphasen
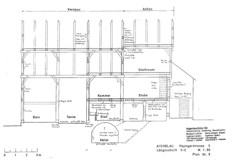
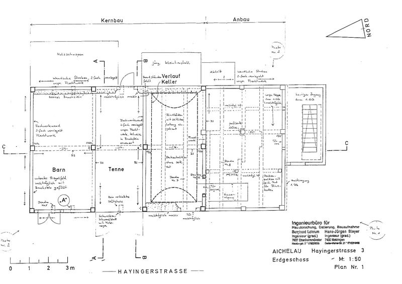
1509 als freistehende Stallscheuer mit Knechtstube erbaut, wurde diese im Jahr 1511 durch den Anbau eines Wohnteils zu einem Eindachhof (Einhaus) erweitert. Im besonderen Fall handelt es sich um ein "gestelztes" Einhaus, in dessen Erdgeschoss die Wirtschafts-, im Obergeschoss die Wohnräume untergebracht sind; eine Mischnutzung von landwirtschaftlichem und handwerklichem Erwerb auf engstem Raum. Das Aichelauer Einhaus diente als kleinbäuerliches Weberhaus mit "Wirkgaden" im Erdgeschoss, der Arbeitsplatz des Webers.
Bis ins 20. Jh. erfolgten immer wieder Umbau- und Modernisierungsmaßnahmen und dennoch ist der Anteil der spätmittelalterlichen Bausubstanz bemerkenswert. Neben dem darauf beruhenden Denkmalwert, ist das Gebäude mit dem 1844 erfolgten, freistehenden "Anbau", ein sog. Ausgedinghaus oder auch Altenhaus von hoher kulturwissenschaftlicher Bedeutung.
Seit der Wiedererrichtung aus des Haupthauses im Jahr 2010, dienen sie gemeinsam in der Baugruppe "Neckarland" im FLM Beuren als Beispiel einer für die Alb typischen Bauform und veranschaulichen eindrücklich auch die hiesige Lebensweise; im Speziellen die Themenbereiche Erbrecht und Altenteil. Mit Ausnahme des Treppenaufgangs im Süden und der verputzten Trauf- und Giebelseite zeigt das Einhaus außen den Zustand um 1824.
Vgl.: http://www.freilichtmuseum-beuren.de/museum/rundgang/bauernhaus-aus-aichelau/ [10.10.2011]; Steffi Cornelius: Kurzführer durch das Freilichtmuseum Beuren, hrsg. vom Landkreis Esslingen, Beuren 2004, S. 20 und Steffi Cornelius und Barbara Wehling: Hausgeschichten. Ein Führer durch das Freilichtmuseum Beuren, hrsg. vom Landkreis Esslingen, Esslingen 1995, S. 82-84.
(1509 - 1511)
1511 wurde ein Anbau errichtet bzw. die Scheune verlängert (d, gk), wobei das Gebäude nach Süden um einen Werkstatt- (EG) und Wohnbereich (OG) erweitert wurde: Stube und Küche im OG mit offener Rauchführung sowie eine weitere Dachkammer im 1. DG. Herzstück bildet die Stube im OG, deren Lage an dem über Eck geführten Fenstererker schon von außen leicht erkennbar ist. Über dem Wohnteil wird zudem ein Krüppelwalm mit dem typisch mittelalterlichen Rauchloch unter dem First abgezimmert (einen Kamin besitzt das Haus folglich auch i.J. 1511 noch nicht).
Der Zugang ins Obergeschoss erfolgte über die Küche, deren Außentüre über eine giebelseitig angelegte Außentreppe erschlossen wurde.
- Siedlung
- Dorf
- Ländl./ landwirtschaftl. Bauten/ städtische Nebengeb.
- Eindachhof
- Stallscheune
- Dachform
- Satteldach mit Schopfwalm (Krüppelwalm)
(1663)
- Dachform
- Satteldach
(1671 - 1691)
- Dachgeschoss(e)
(1771)
(1801)
(1821 - 1822)
- Ersatz der Außentreppe von 1663 durch eine in Ausdehnung und Konzeption ungefähr entsprechende Konstruktion (1822/23 d).
(1823 - 1824)
(1844)
(1850 - 1900)
(1864)
(1900 - 1925)
(1949)
(2005)
- Siedlung
- Freilichtmuseum
(2006 - 2010)
- Siedlung
- Freilichtmuseum
- Anlagen für Bildung, Kunst und Wissenschaft
- Museum/Ausstellungsgebäude
Zugeordnete Dokumentationen
- Bauhistorische Kurzuntersuchung.
- Baugeschichtliche Untersuchung. (Datensatz noch in Bearbeitung)
- Restauratorische Untersuchung
- Bauhistorische Kurzuntersuchung
Beschreibung
- Siedlung
- Freilichtmuseum
- Anlagen für Bildung, Kunst und Wissenschaft
- Museum/Ausstellungsgebäude
- Ländl./ landwirtschaftl. Bauten/ städtische Nebengeb.
- Ausgedinghaus
- Bauernhaus
- Eindachhof
- Stallscheune
Zonierung:
Konstruktionen
- Mischbau
- Holzbau mit Gebäudeteil aus Stein
- Dachform
- Satteldach
- Holzgerüstbau
- Unterbaugerüst
- Dachgerüst Grundsystem
- Sparrendach, q. geb. mit stehendem Stuhl
- Gestaltungselemente
- Zierglieder im Holzbau
Stockwerksgerüst im Stallbereich und Wohnteil zweigeschossig unterteilt; rückwärtige Traufseite des Scheunenbereichs 1821 (i, g) überwiegend durch Massivwände ersetzt. Bauzeitliche Gefachfüllungen durch Lehmflechtwerk, jüngere Gefachfüllungen mit Bruchstein; Dachwerk des Wohnteils von 1511 (d) an Südgiebelseite als Halbwalm mit Rauchloch.






